Spacious two-bedroom home with large garden and parking in a tranquil hamlet.
Flint-fronted cottage in South Downs National Park
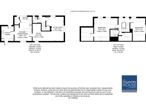
A charming flint-fronted cottage set within the South Downs National Park, this two-bedroom home combines comfortable living with substantial plot potential. The ground floor offers an L-shaped sitting room with working fireplace, a well-fitted kitchen/dining room, large utility and cloakroom, while two generous double bedrooms, a study/store and family bathroom occupy the first floor.
The plot is a standout asset: very large gardens, private off-street parking and an attached single garage create space for outdoor living and vehicle storage. The property sits in a peaceful hamlet about a mile from East Meon and five miles from Petersfield, giving countryside tranquillity yet accessible rail and road connections.
Practical points to note: heating is oil-fired with a boiler and radiators, council tax is above average, and any reconfiguration or extension would require planning permission. The house, built between 2007–2011 with double glazing, is well presented but offers scope for reconfiguration or updating to suit a buyer’s needs.
This cottage will suit someone seeking a rural retreat or downsizer wanting roomy accommodation in a protected landscape, with scope to adapt the layout or extend (subject to permissions). It’s particularly appealing to walkers and outdoor enthusiasts drawn to the National Park setting.
3 bedroom semi-detached house for sale in East Meon, Petersfield, Hampshire, GU32 — £550,000 • 3 bed • 1 bath • 1010 ft²
3 bedroom cottage for sale in Temple Brow, East Meon, GU32 — £750,000 • 3 bed • 2 bath • 1941 ft²
4 bedroom detached house for sale in East Meon, Hampshire, GU32 — £1,250,000 • 4 bed • 2 bath • 1893 ft²
4 bedroom house for sale in Froxfield, Petersfield, Hampshire, GU32 — £900,000 • 4 bed • 2 bath • 2111 ft²
2 bedroom cottage for sale in Hay Place Lane, Binsted, GU34 — £535,000 • 2 bed • 1 bath • 1049 ft²
3 bedroom semi-detached house for sale in Buriton, Petersfield, Hampshire, GU31 — £800,000 • 3 bed • 2 bath • 1318 ft²














































