**Standout Features:**
- Stunning Victorian townhouse from 1881, fully refurbished and extended
- Four spacious bedrooms and three welcoming reception rooms
- Two modern bathrooms plus an additional wet room/wc
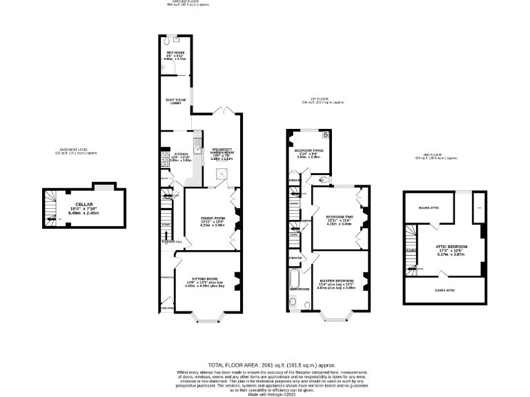
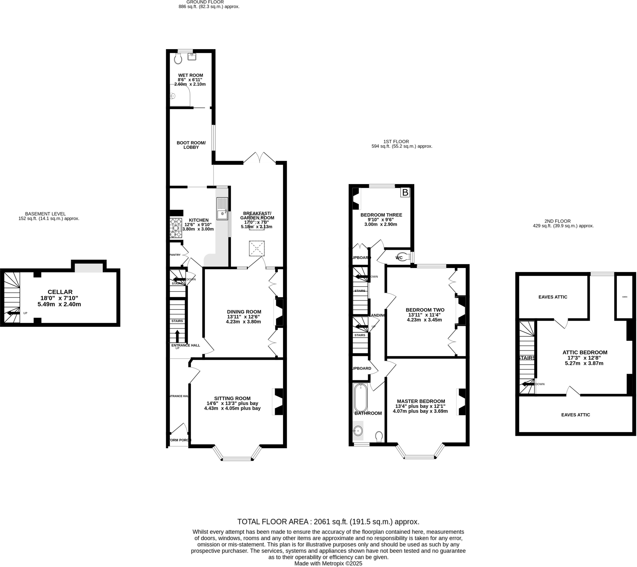
- Expansive 2061 sq. ft. layout with a full-height cellar
- Charming walled garden and parking with a garage
- Centrally located, just 250 yards from Bungay Town Centre
**Potential Downsides:**
- Above-average crime rate in the area
- Property sits within a small plot size
Nestled in one of Bungay's most sought-after locations, this exquisitely renovated Victorian townhouse is an ideal family home. With four generous bedrooms and three bright reception rooms, there is ample space for both entertainment and relaxation. The contemporary kitchen flows through to a light-filled garden room, leading directly to charming walled gardens—perfect for outdoor gatherings or quiet retreats.
Enjoying views over the picturesque Waveney Valley, the property boasts an impressive full-height cellar offering versatile storage or potential as a playful space for children. While the area has an above-average crime rate, the property itself is designed with security and comfort in mind, making it an inviting and exclusive home base. The layout can easily accommodate future customization to fit changing needs, making this a wonderful investment opportunity not to be missed. With local amenities within easy reach and top-rated schools nearby, seize this chance to own a piece of history in a thriving community—schedule your viewing today!
4 bedroom end of terrace house for sale in Wingfield Street, Bungay, NR35 — £350,000 • 4 bed • 1 bath • 1472 ft²
3 bedroom detached house for sale in Beccles Road, Bungay, NR35 — £350,000 • 3 bed • 1 bath • 1094 ft²
3 bedroom end of terrace house for sale in Southend Road, Bungay, NR35 — £325,000 • 3 bed • 1 bath • 1431 ft²
3 bedroom detached house for sale in Flixton Road, Bungay, Suffolk, NR35 — £695,000 • 3 bed • 2 bath • 2413 ft²
3 bedroom semi-detached house for sale in Hillside Court, Bungay, NR35 — £365,000 • 3 bed • 2 bath • 1243 ft²
4 bedroom terraced house for sale in St. Johns Road, Bungay, NR35 — £325,000 • 4 bed • 2 bath • 956 ft²


















































































