Bright modern studio overlooking the marina, ideal for first-time buyers or investors.
Marina and waterfront views from fourth floor windows
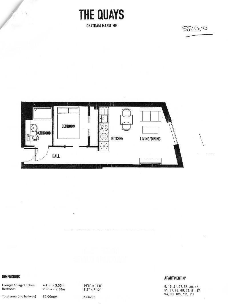
Compact footprint: 344 sq ft total living space
Gloss kitchen with granite worktops and integrated appliances
Double shower bathroom with high-spec fittings and heated rail
No allocated parking; on-street parking only
Electric room heaters — no communal gas heating
Service charge approx. £2,076pa; ground rent £250pa
116 years remaining on the lease; chain free sale
Set on the fourth floor of Marina Point East, this compact one‑bed studio delivers bright, modern waterside living with direct views across Chatham Marina. The open-plan living area includes a fitted gloss kitchen with granite worktops and integrated appliances, and large windows maximise the marina aspect and natural light.
The bedroom has built-in wardrobes and the bathroom features a double shower with high-quality fittings. Practical benefits include video entry, lift access and a chain‑free sale — useful for a first‑time buyer seeking a straightforward move or an investor looking for a ready-to-rent unit.
Notable practical points are that the apartment is small at 344 sq ft, uses electric room heaters rather than a communal gas system, and there’s no allocated parking (on‑street only). Service charge and ground rent apply (approx. £2,076 pa service charge; £250 pa ground rent) and the area records higher crime levels, which should be considered when viewing.
The lease is long (about 116 years remaining) and the modern build (2007–2011) means double glazing and recent construction methods, but prospective buyers should verify running costs and communal management. Early viewing recommended for those wanting compact marina-side living in a vibrant, amenity-rich quarter.
1 bedroom apartment for sale in Marina Point East, Dock Head Road, Chatham Maritime, ME4 — £186,000 • 1 bed • 1 bath • 567 ft²
1 bedroom apartment for sale in Dock Head Road, ME4 — £175,000 • 1 bed • 1 bath • 468 ft²
1 bedroom apartment for sale in The Wharf, Chatham Quays, Chatham Maritime, ME4 — £155,000 • 1 bed • 1 bath • 478 ft²
1 bedroom flat for sale in Chatham Quays, Dock Head Road, Chatham, ME4 — £175,000 • 1 bed • 1 bath • 496 ft²
1 bedroom apartment for sale in Dock Head Road, Chatham, ME4 4ZH, ME4 — £185,000 • 1 bed • 1 bath • 567 ft²
1 bedroom flat for sale in Dock Head Road, Chatham, ME4 — £160,000 • 1 bed • 1 bath • 549 ft²






























