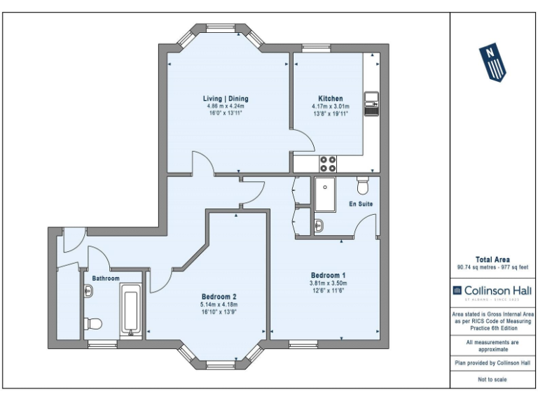
**Standout Features:**
- Modern two-bedroom apartment in a gated development.
- Allocated off-street parking with visitor bays available.
- Lift access to all floors and enhanced security system.
- Spacious living area with bay window and neutral décor.
- Two double bedrooms, with the principle featuring an en suite.
- EPC rating: B 83.
**Potential Downsides:**
- Leasehold with 104 years remaining.
- Maintenance costs associated with leasehold property.
**Summary:**
Discover modern living in this spacious two-bedroom apartment set within a prestigious gated development in St. Albans. Perfect for families and first-time buyers alike, this contemporary flat features a bright lounge with a charming bay window that invites natural light, alongside a fully fitted kitchen designed for ease and comfort. The principal bedroom boasts fitted wardrobes and a stylish en suite, while the second double bedroom offers ample space. Enjoy the convenience of allocated off-street parking, a secure entryphone system, and a lift to all floors.
Situated close to excellent local schools and essential amenities, this home combines comfort, security, and functionality in an affluent neighborhood. With its fantastic location and low maintenance living, this apartment is not just a home but a smart investment. With only 104 years remaining on the lease, act quickly to seize this opportunity!
2 bedroom flat for sale in Holywell Hill, St. Albans, Hertfordshire, AL1 — £435,000 • 2 bed • 2 bath • 804 ft²
2 bedroom flat for sale in , Holywell Hill, St. Albans, AL1 — £430,000 • 2 bed • 2 bath • 821 ft²
2 bedroom flat for sale in Wain Close, St. Albans, Hertfordshire, AL1 — £500,000 • 2 bed • 2 bath • 720 ft²
2 bedroom flat for sale in Old Mile House Court, St. Albans, Hertfordshire, AL1 — £400,000 • 2 bed • 2 bath • 8277 ft²
2 bedroom flat for sale in Holywell Hill, St. Albans, AL1 — £422,500 • 2 bed • 2 bath • 977 ft²
2 bedroom flat for sale in Porters Wood, St. Albans, AL3 — £315,000 • 2 bed • 1 bath • 819 ft²






































