No onward chain — ready for quick sale
Period features: inglenook fireplace, exposed beams, vaulted ceilings
Walled, secluded cottage garden; east–west aspect, not overlooked
Integral garage with conversion potential (STPP)
Double glazing (post-2002); boiler serviced 2022
Broadband slow and currently not connected — upgrade likely needed
Council tax described as expensive
Locally listed as a building of merit; not statutory listed
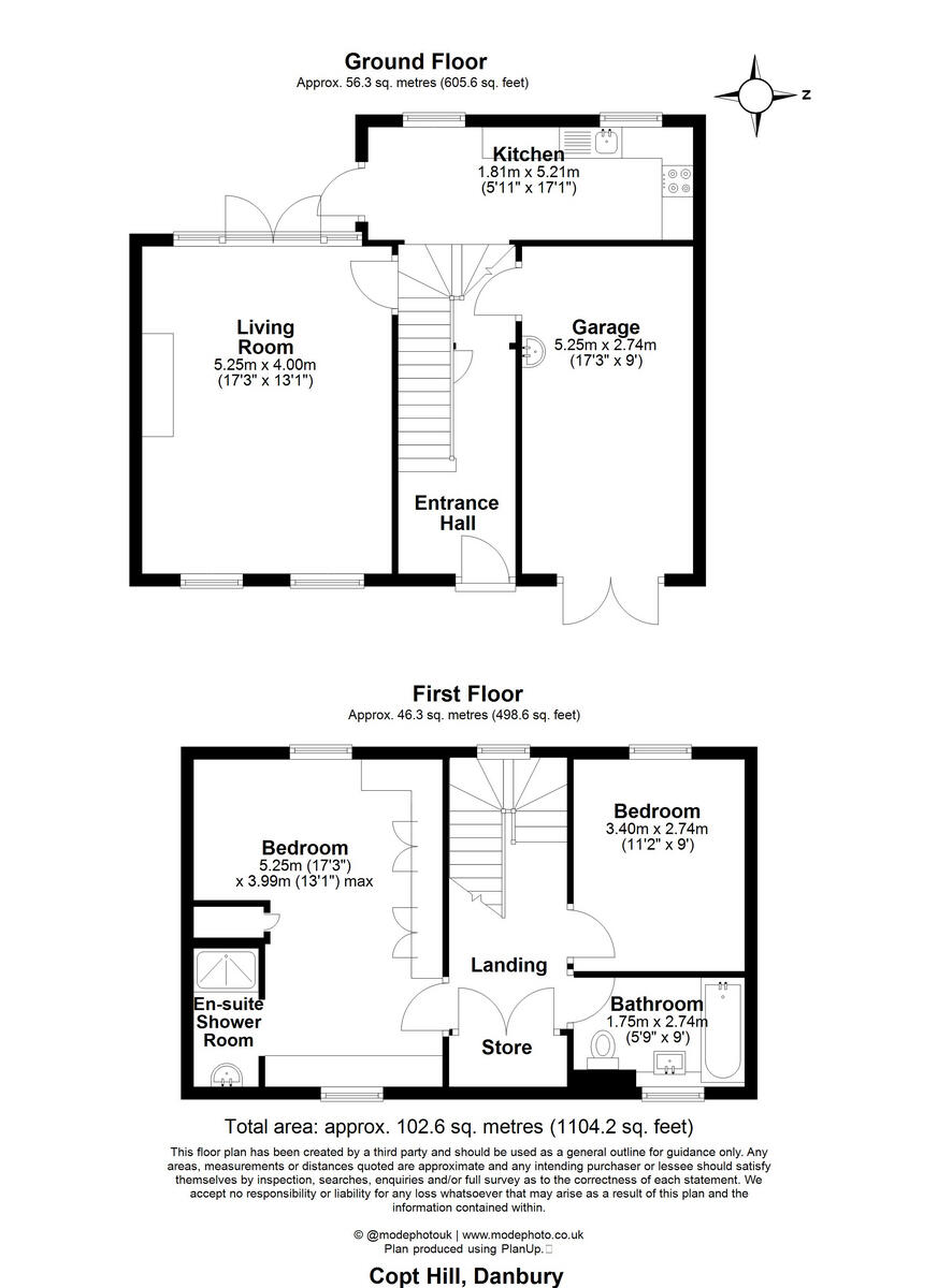
This charming two-bedroom link-detached period cottage offers an attractive, low-hassle purchase with no onward chain. Nestled by the small communal green on Copt Hill in sought-after Danbury, the home combines character features — exposed beams, vaulted ceilings and a central inglenook fireplace — with a private, walled cottage garden that enjoys all-day sun and seclusion.
Downstairs provides a generous dual-aspect living room with French doors to the patio and a farmhouse-style kitchen with direct garage access. Upstairs are two double bedrooms beneath vaulted ceilings and a family bathroom; the main bedroom includes a fitted wardrobe and a small ensuite. The property is freehold and sits on a very large plot with off-street parking and an integral garage, which offers clear potential for conversion subject to planning permission (STPP).
Practical points are straightforward: double glazing was installed post-2002, the boiler was serviced in 2022, and mains utilities are present. However, broadband speeds are slow and the property is not currently connected, so buyers needing fast internet should plan for upgrades. Council tax is described as expensive. The house is locally listed as a building of merit but is not statutory listed, which affects planning flexibility.
This cottage will suit downsizers or buyers seeking a character home in a peaceful, affluent village setting with good local amenities and easy access to countryside and commuter links. It is presented with honest disclosures: modest modernisation may be desired, and any garage conversion would require planning consent.







































































