One-bedroom with large private terrace close to Burgess Park and transport.
Private front door and direct access to a large private garden
Convenient Camberwell/Peckham border location, near Burgess Park
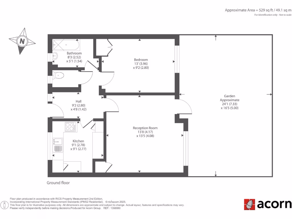
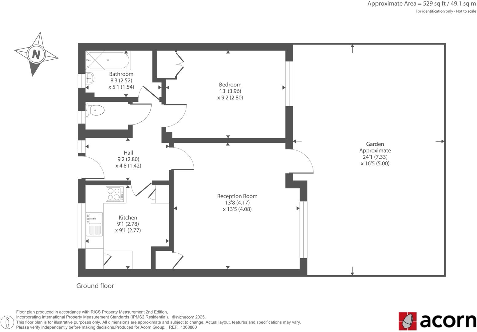
529 sq ft one-bedroom with separate kitchen and bathroom
Lease approx. 101 years remaining; leasehold tenure
Service charge c. £2,188 pa and ground rent £10 pa
Built 1950s–66; older double glazing and likely no wall insulation
Area is deprived and crime rate is above average
Low council tax band, good local transport links
This purpose-built one-bedroom apartment offers direct street access and an unusually large private garden for ground-floor living. At 529 sq ft the layout includes a generous double bedroom, separate kitchen and a three-piece bathroom — a practical, comfortable home for a first-time buyer or couple.
Positioned on the Camberwell/Peckham border, the property is a short walk to Burgess Park and local shops, cafés and galleries. Transport links are good with multiple bus routes into Central London and Denmark Hill station within easy reach, making commuting straightforward.
Practical considerations are clear: the lease has about 101 years remaining, annual service charge is £2,188 and ground rent is £10. The building dates from the 1950s–60s, has older double glazing and solid brick walls likely without cavity insulation, which may affect heating costs and future upgrade work.
This home suits a buyer looking for outdoor space in an inner-city location and someone willing to carry out modest improvements to boost energy efficiency and long-term value. The property’s low council tax band and long lease add practical appeal alongside the private outdoor area.
1 bedroom apartment for sale in The Limes, Grove Park, London, SE5 — £300,000 • 1 bed • 1 bath • 447 ft²
1 bedroom apartment for sale in John Ruskin Street, London, SE5 — £350,000 • 1 bed • 1 bath • 587 ft²
2 bedroom apartment for sale in Lomond Grove, London, SE5 — £525,000 • 2 bed • 2 bath • 841 ft²
1 bedroom flat for sale in Philip Walk, Peckham Rye, London, SE15 — £425,000 • 1 bed • 1 bath • 503 ft²
2 bedroom apartment for sale in Peckham Road, London, SE5 — £365,000 • 2 bed • 1 bath • 593 ft²
1 bedroom flat for sale in Ava House, Kimberley Avenue, Nunhead, SE15 — £400,000 • 1 bed • 1 bath • 488 ft²














































































