Compact, chain-free ground-floor home with garden room and fast Elizabeth Line links.
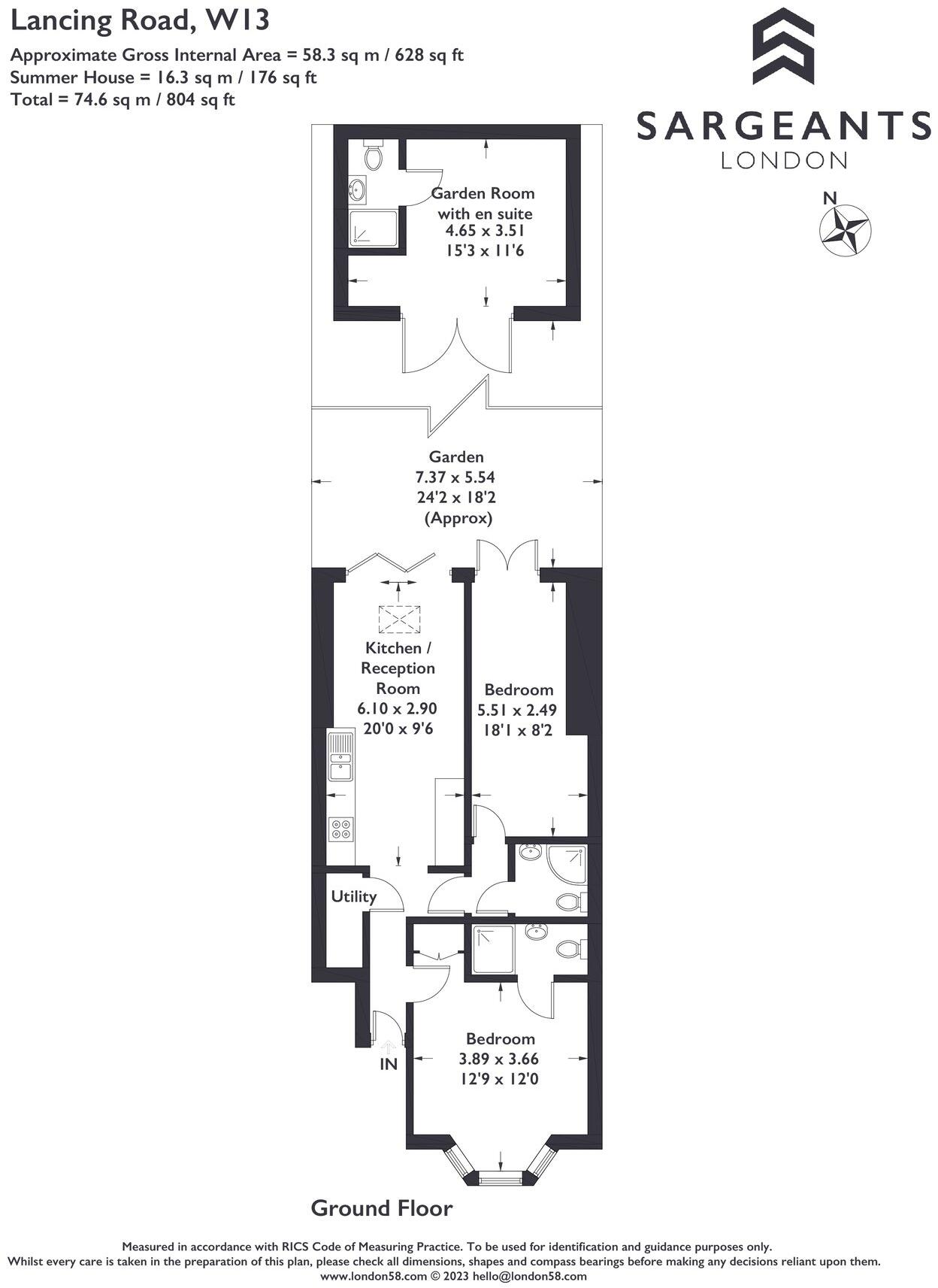
- Ground-floor two-bedroom period conversion, approx 628 sq ft
- Private rear courtyard garden with detached garden room and ensuite
- Open-plan kitchen/reception, high ceilings and good natural light
- Chain free sale; leasehold tenure (buyer to check lease length/terms)
- Excellent transport: West Ealing station (Elizabeth Line) nearby
- EPC rating C; no flood risk recorded
- On-street parking only; no allocated parking space
- Local area: very high crime and very deprived — affects insurance/appeal
A bright ground-floor period conversion with private garden and a versatile detached garden room, ideal for a home office, short-term guest suite or ancillary rental. The open-plan kitchen/reception benefits from high ceilings, natural light and direct access to a paved courtyard — an uncommon feature for a compact inner-London flat.
The flat sits within easy reach of West Ealing station (Elizabeth Line) and St John’s Primary (Outstanding), making it well placed for fast commutes and family needs. At about 628 sq ft the accommodation is compact but practically arranged: two bedrooms, two bathrooms and a useful utility/entrance hall provide comfortable day-to-day living.
Important practical points are straightforward: the property is leasehold and chain free, with on-street parking and an EPC rating of C. The immediate area sees very high crime figures and is classified as very deprived, which may affect long-term capital growth and insurance/financing considerations.
For first-time buyers or buy-to-let investors this flat offers strong commuting value, outdoor space and additional accommodation via the garden room. The property is presented in contemporary decorative order but remains a compact urban home, so buyers should budget for future maintenance and factor in the local social and safety context when assessing suitability.
2 bedroom apartment for sale in Leighton Road, London, W13 — £585,000 • 2 bed • 1 bath • 581 ft²
2 bedroom apartment for sale in St. James Avenue, West Ealing, W13 — £599,950 • 2 bed • 1 bath • 952 ft²
1 bedroom flat for sale in The Avenue, Ealing, London, W13 — £310,000 • 1 bed • 1 bath • 390 ft²
2 bedroom flat for sale in Seaford Road, West Ealing, W13 — £525,000 • 2 bed • 1 bath • 660 ft²
2 bedroom flat for sale in Endsleigh Road, Ealing, W13 — £550,000 • 2 bed • 1 bath • 570 ft²
2 bedroom flat for sale in Hastings Road, West Ealing, W13 — £550,000 • 2 bed • 2 bath • 718 ft²






























































