**Standout Features:**
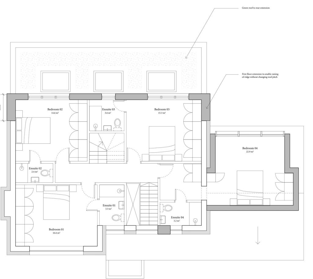
- Spacious detached family home with 4 double bedrooms
- Generous plot of 2.1 acres, with extensive landscaped grounds and paddock
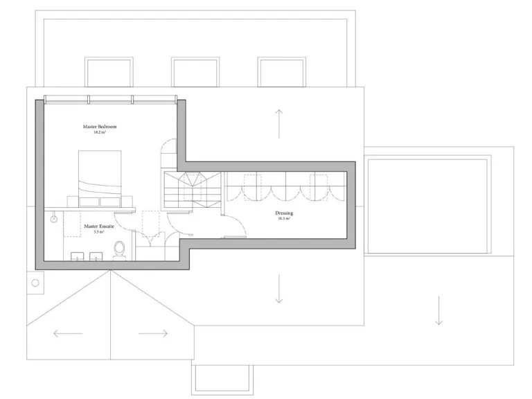
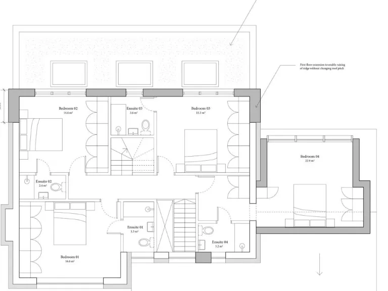
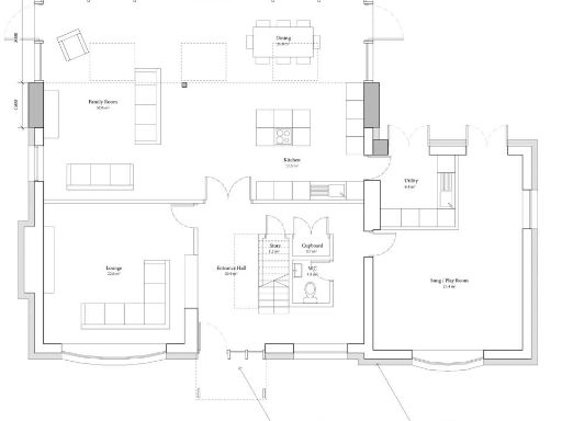
- Approved planning permission for a double-storey extension, increasing size to 3186 sq ft
- Includes double garage and multiple reception areas
- Located in a tranquil, affluent rural setting with very low crime rates
- Proximity to well-rated primary schools
**Summary:**
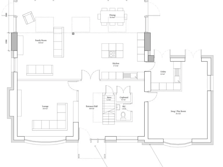
Nestled on the edge of the picturesque villages of Downham and Ramsden Heath, this impressive detached family home offers 2,770 sq ft of well-presented living space, set within a sprawling 2.1-acre plot. With approved planning permission for a generous double-storey extension, future owners have the exciting potential to expand the size of the home further. The property features a sleek Shaker kitchen with integrated appliances, three spacious reception rooms, and a bright conservatory, perfect for both entertaining and family living.
Surrounded by beautifully landscaped grounds, including a large paddock and summer house, this residence promises a serene rural lifestyle with privacy and charm. The home is equipped with essential amenities, including a double garage, and its sweeping block-paved driveway accessed via electronic gates enhances the property's appeal.
Families will appreciate the access to highly rated local schools, while the area maintains an affluent community vibe with excellent mobile and broadband connectivity. While the property may require some updates, its solid structure, modern features, and expansive outdoor space present an incredible opportunity for both investors and families to create their dream home. Don’t miss the chance to secure this rare gem that embodies comfort, exclusivity, and future potential—act now before it's gone!
5 bedroom detached house for sale in De Beauvoir Chase, Downham, Billericay, CM11 — £1,499,000 • 5 bed • 3 bath • 2984 ft²
4 bedroom detached house for sale in Dowsett Lane, Ramsden Heath, CM11 — £1,250,000 • 4 bed • 3 bath • 3907 ft²
3 bedroom detached house for sale in Creephedge Lane, East Hanningfield, CM3 — £900,000 • 3 bed • 2 bath • 1349 ft²
3 bedroom semi-detached house for sale in Hawkswood Road, Downham, CM11 — £425,000 • 3 bed • 1 bath • 969 ft²
5 bedroom detached house for sale in London Road, Ongar, Stanford Rivers, Essex, CM5 — £1,850,000 • 5 bed • 5 bath • 4796 ft²
4 bedroom detached house for sale in Ramsden Park Road, Ramsden Bellhouse, CM11 — £1,500,000 • 4 bed • 3 bath • 3848 ft²


































































