**Standout Features:**
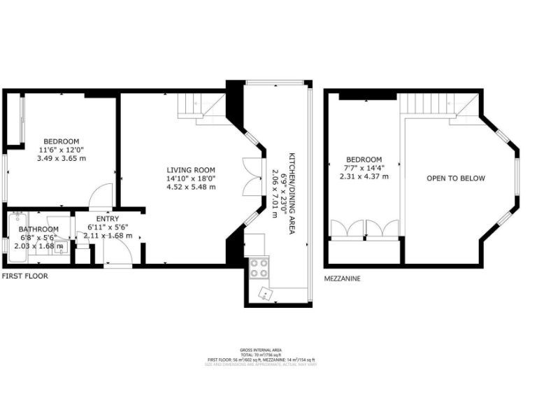
- Elegant first-floor flat with 2 bedrooms, including a stylish mezzanine.
- Spacious reception room with high ceilings and abundant natural light.
- Fully fitted kitchen with ample dining space, enhanced by underfloor heating.
- Located in a prestigious period building within walking distance to Hyde Park, the Royal Albert Hall, and Imperial College.
- Share of freehold status offers a level of ownership security.
**Potential Downsides:**
- Very high crime rate in the local area may be a concern for some buyers.
- Maintenance may be needed due to age and potential lack of insulation.
**Summary:**
Discover an exceptional opportunity to own this bright and modern 2-bedroom flat on Queens Gate, South Kensington. This first-floor gem features a stunning reception room with soaring ceilings and a unique mezzanine level, perfect for a home office or guest space. Sunlight floods through the large windows, enhancing the contemporary design. The well-equipped kitchen, complete with underfloor heating, offers a spacious area for both dining and entertaining, ideal for a busy lifestyle. Positioned in a charming period building, this flat not only provides a cozy living experience but also places you moments away from local shops, amenities, and cultural landmarks like Hyde Park and the Royal Albert Hall. Families will appreciate the nearby reputed schools, making it a prime location for growth.
While the vibrant cosmopolitan neighborhood boasts a wealth of conveniences, it's important to consider the local area’s higher-than-average crime rate and the potential need for ongoing maintenance due to the building’s age. With a share of freehold, the property allows for flexibility in ownership. This remarkable flat is sure to attract attention in today’s market, so don’t miss out on making it your new home!
2 bedroom flat for sale in Queen's Gate, South Kensington, London, SW7 — £1,150,000 • 2 bed • 1 bath • 645 ft²
2 bedroom flat for sale in Queen's Gate, SW7 — £1,150,000 • 2 bed • 1 bath • 728 ft²
2 bedroom flat for sale in Queen's Gate, London, SW7 — £1,825,000 • 2 bed • 2 bath • 897 ft²
2 bedroom flat for sale in Queens Gate,
South Kensington, SW7 — £1,200,000 • 2 bed • 2 bath • 775 ft²
2 bedroom apartment for sale in Queen's Gate, South Kensington, SW7 — £1,250,000 • 2 bed • 1 bath • 920 ft²
2 bedroom flat for sale in Queen's Gate, London, SW7 — £1,595,000 • 2 bed • 2 bath • 1524 ft²


















































































