Characterful three-bed cottage with large garden, no chain — ideal for families seeking central Witney location..
Three bedrooms in a character stone cottage
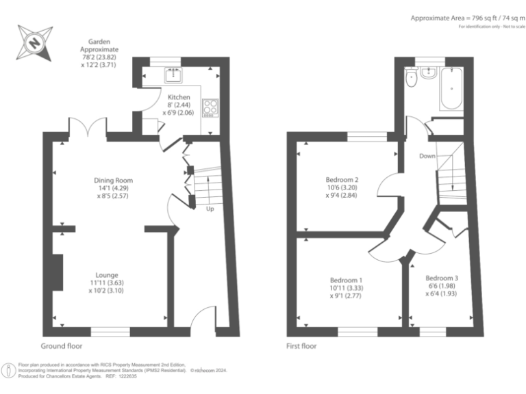
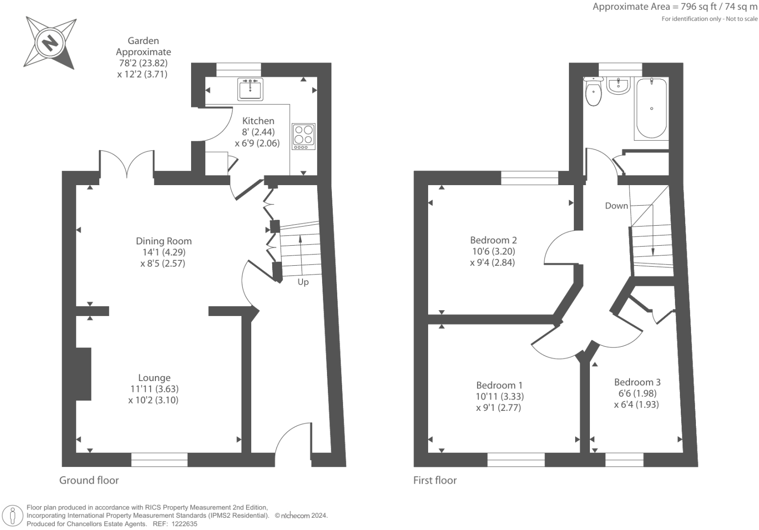
This stone-built West End cottage blends original character with practical living across three bedrooms and an open-plan ground floor. Sized at about 796 sq ft, the house is compact but well laid out, and benefits from double glazing and mains gas central heating. The large rear garden is a standout feature for families or buyers wanting outdoor space in a central location.
Offered with no onward chain, the property suits buyers seeking a quick move or investors targeting a popular Witney location with good school choices nearby. The terrace sits close to local shops, bus links and Witney’s rail connection toward London Paddington, making commuting and everyday errands straightforward.
Buyers should note the cottage is small and sits on a modest plot; there is a single bathroom and the building dates from before 1900, with traditional sandstone/limestone walls likely uninsulated. The roof shows moss and exterior stonework may require ongoing maintenance. There is a medium flood risk for the area — suitable due diligence and appropriate insurance are advised.
Overall, this period mid-terrace offers attractive character, a large garden and convenient West End location, balanced by evident maintenance and size limitations. It will appeal to families or first-time buyers who value location and character and who are prepared for some upkeep or targeted improvements.
3 bedroom terraced house for sale in Dark Lane, Witney, OX28 — £425,000 • 3 bed • 1 bath • 1007 ft²
2 bedroom terraced house for sale in Newland, Witney, Oxfordshire, OX28 — £300,000 • 2 bed • 1 bath • 751 ft²
3 bedroom terraced house for sale in Witney, Oxfordshire, OX28 — £350,000 • 3 bed • 1 bath • 819 ft²
2 bedroom terraced house for sale in Oxford Hill, Witney, Oxfordshire, OX28 — £340,000 • 2 bed • 1 bath • 814 ft²
2 bedroom terraced house for sale in Corn Street, Witney, OX28 — £295,000 • 2 bed • 1 bath • 718 ft²
2 bedroom terraced house for sale in Witney, Oxfordshire, OX28 — £325,000 • 2 bed • 1 bath • 952 ft²






































































































