**Standout Features:**
- **Sprawling 20.91 Acres:** Includes 19.5 acres of pasture land.
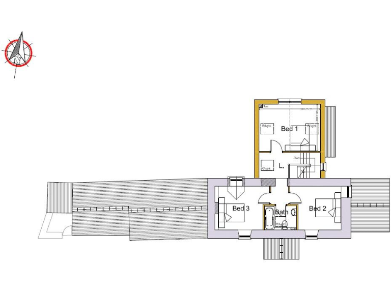
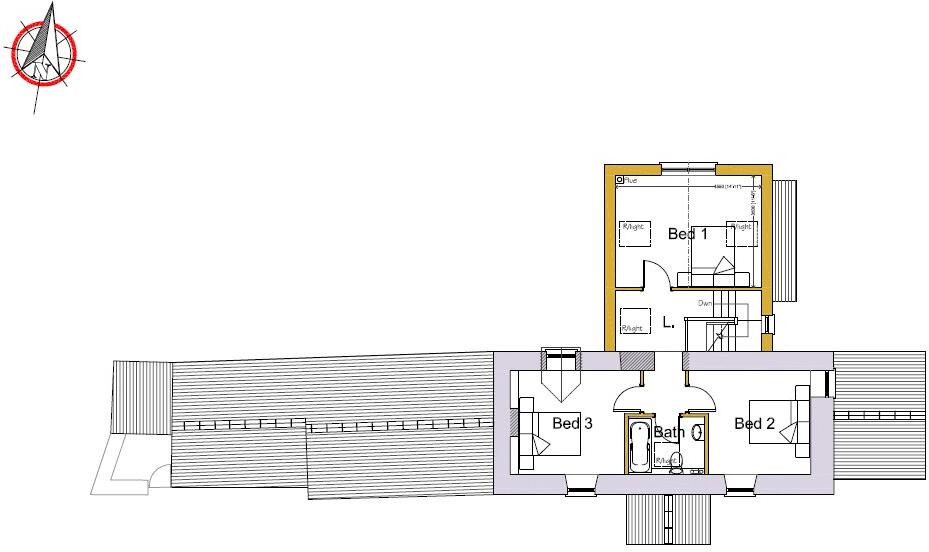
- **Planning Permission Approved:** Allows renovation and extension to create a 4-bedroom family home with a garage (Pembrokeshire County Council reference: 22/0246/PA).
- **Rural Charm with Accessibility:** Located just 1 mile from Pembroke and close to stunning coastal paths and scenic spots.
- **Development Potential:** Ideal for livestock, with possibilities for additional agricultural structures depending on future plans.
- **Historic Character:** A typical Pembrokeshire Longhouse featuring traditional stone architecture.
**Potential Concerns:**
- **Significant Renovation Needed:** The farmhouse has not been occupied since the early 1980s and requires extensive restoration.
- **Maintenance Considerations:** While some work has been undertaken to preserve the stonework, additional repairs and renovations are essential.
- **Average Broadband Speed and Crime Rate:** May impact usual amenities and safety perception.
**Summary Description:**
Explore the vast potential of this historical farmhouse set on approximately 20.91 acres of picturesque land in Pembrokeshire. With approved planning permission in place, envision transforming this derelict property into a stunning 4-bedroom family home that retains its rustic charm while adapting modern comforts. The property boasts ample room for equestrian uses and additional agricultural buildings, surrounded by lush pastures and a mix of wooded areas, presenting endless possibilities for hobby farming or leisure activities. Enjoy the tranquility of rural living with easy access to Pembroke town and breathtaking coastal paths just a mile away, perfect for the nature enthusiast. This unique opportunity could serve as a splendid family haven or a promising investment for tourism-driven aspirations amid the anticipated update of local development policies. Don’t miss your chance to bring your vision to life in this distinctive and serene setting!
3 bedroom smallholding for sale in Martletwy, Narberth, SA67 — £595,000 • 3 bed • 1 bath • 948 ft²
5 bedroom detached house for sale in Hasguard, Haverfordwest, SA62 — £500,000 • 5 bed • 3 bath • 2305 ft²
Detached house for sale in Merrion, Nr Pembroke, Pembrokeshire, SA71 — £750,000 • 1 bed • 1 bath
5 bedroom barn conversion for sale in Lydstep, Tenby, Pembrokeshire, SA70 — £550,000 • 5 bed • 3 bath • 3998 ft²
7 bedroom detached house for sale in Cosheston, Pembroke Dock, Pembrokeshire, SA72 — £675,000 • 7 bed • 2 bath • 2518 ft²
3 bedroom smallholding for sale in Honeyborough Green, Neyland, SA73 — £480,000 • 3 bed • 3 bath • 1765 ft²


























































































