Auction sale — vacant 3-bed with garden and parking, ideal for refurbishment.
Vacant freehold three-bedroom semi-detached with driveway and gardens
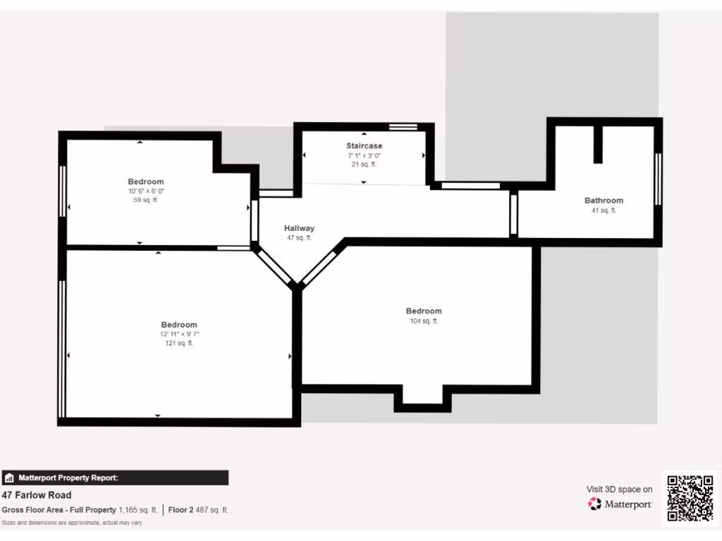
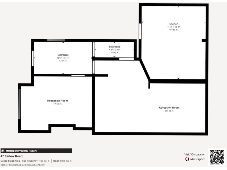
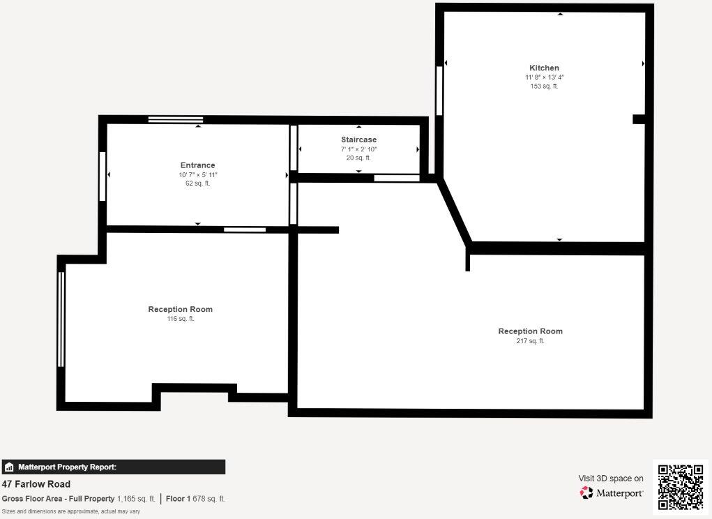
A vacant freehold three-bedroom semi-detached house offered for sale at public auction — vacant possession on completion. The property sits back from the road with a driveway, front and rear gardens and practical family accommodation across two floors: two reception rooms, kitchen, three bedrooms and a bathroom with separate WC. Gas central heating and double glazing are present.
The house requires updating and cosmetic renewal throughout; external pebble-dash, older windows and a neglected garden are noted. Damp issues have been recorded and will need investigation and remedial work. The interior offers scope to modernise and reconfigure, making this a straightforward renovation project for an investor or buyer prepared to refurbish.
Practical points for buyers: the lot will be sold at auction with a fixed completion period of 56 days. Buyers must read the legal pack for possible additional costs and special conditions; an administration fee is payable on completion. There is no pre-auction offer process, and viewings are scheduled on set dates prior to the sale.
Location strengths include fast broadband, excellent mobile signal and several well-rated nearby primary and secondary schools. The property has no flood risk but sits in a deprived area — refurbishing could unlock rental or resale value in a major conurbation setting.
3 bedroom end of terrace house for sale in 60 Auckland Road, Smethwick, B67 7AU, B67 — £39,000 • 3 bed • 1 bath • 897 ft²
3 bedroom terraced house for sale in 2 Debenham Road, Yardley, Birmingham, B25 8SP, B25 — £50,000 • 3 bed • 1 bath • 453 ft²
3 bedroom semi-detached house for sale in 22 Raby Close, Oldbury, B69 1US, B69 — £29,000 • 3 bed • 1 bath • 1109 ft²
3 bedroom semi-detached house for sale in 114 Dorrington Road, Great Barr, Birmingham, B42 1QT, B42 — £20,000 • 3 bed • 1 bath
3 bedroom semi-detached house for sale in 162 Hales Lane, Smethwick, B67 6QY, B67 — £50,000 • 3 bed • 1 bath
3 bedroom semi-detached house for sale in 33 Kipling Road
Northfield, Birmingham, B30 1AZ, B30 — £120,000 • 3 bed • 1 bath • 857 ft²


































































