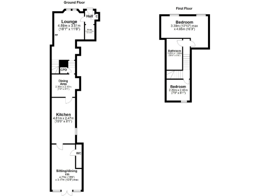
**Standout Features:**
- **Location:** Prime coastal setting with uninterrupted sea views.
- **Property Type:** Traditional mid-terrace villa with charming early 20th-century details.
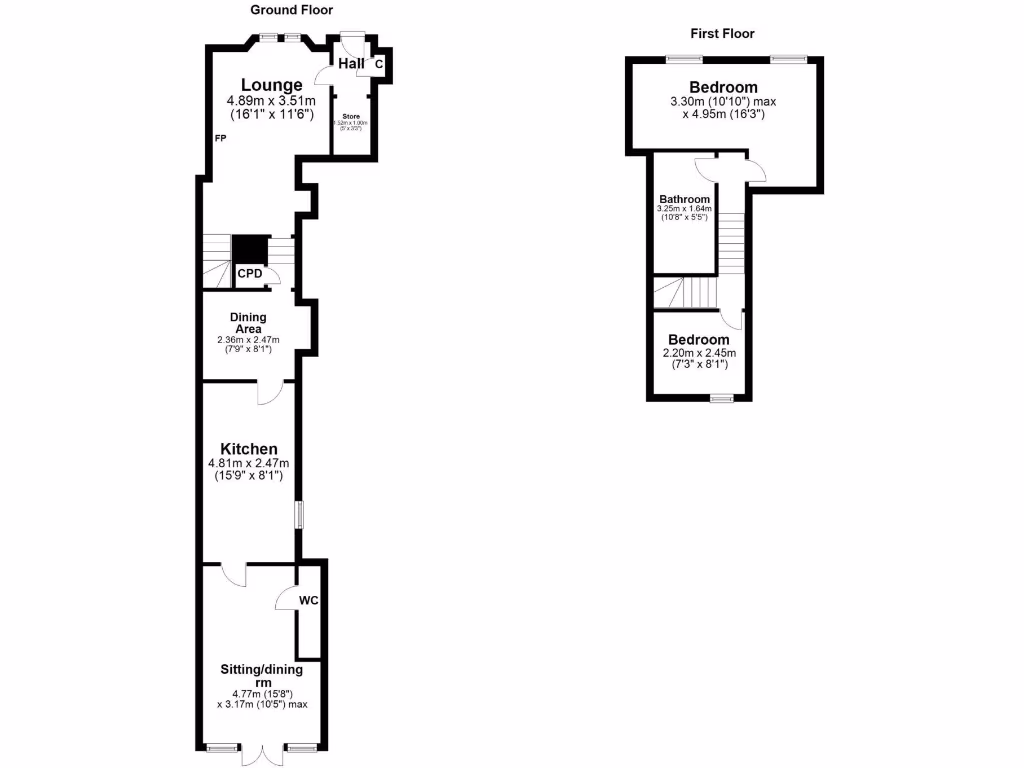
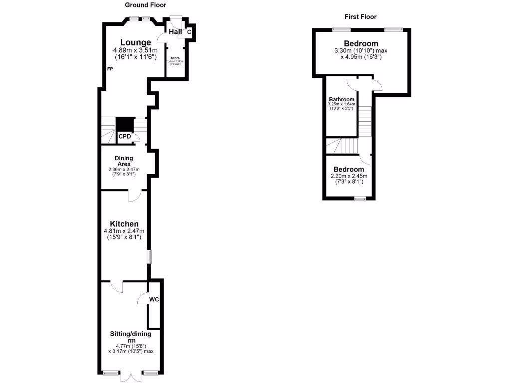
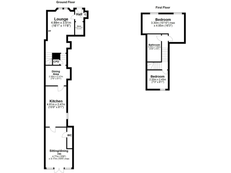
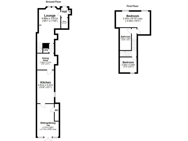
- **Size:** Spacious, with 1,033 sq ft ideal for renovation.
- **Extension Potential:** Scope to extend to the rear (subject to consent).
- **Parking:** Off-street parking to the front.
- **Garden:** Enclosed westerly garden featuring a lawn and patio area.
- **Suitability:** Great for families, investors, or first-time buyers with renovation vision.
**Summary:**
Discover this traditional terraced villa at 52 South Beach, Troon, presenting a rare opportunity to create your dream coastal home. This spacious 2-bedroom property, needing modernisation, features an inviting entrance with access to a front-facing lounge, dining room, kitchen, and cozy sitting room. The well-proportioned garden is perfect for relaxation and provides direct access to communal green space and the beach, ideal for outdoor enthusiasts and families.
Located in one of Troon’s most admired areas, you’ll enjoy stunning views across the Firth of Clyde, with easy access to excellent schools and local amenities, alongside renowned golf courses like Royal Troon. This property harmonizes comfort with potential – envision the future upgrades, enhancements, and the bliss of coastal living. Don’t miss the chance to transform this fixer-upper into the perfect seaside retreat, where serene views and vibrant local culture await your personal touch.
5 bedroom detached house for sale in 34 South Beach, Troon, KA10 6EF, KA10 — £695,000 • 5 bed • 3 bath • 2368 ft²
4 bedroom town house for sale in South Beach, Troon, KA10 — £455,000 • 4 bed • 2 bath • 1475 ft²
2 bedroom flat for sale in Flat C, 161 Welbeck Crescent, Troon, KA10 6AP, KA10 — £85,000 • 2 bed • 1 bath • 688 ft²
2 bedroom flat for sale in 14 Marine View Court, Troon, KA10 6AY, KA10 — £185,000 • 2 bed • 1 bath • 925 ft²
5 bedroom house for sale in South Beach, Troon, South Ayrshire, KA10 — £775,000 • 5 bed • 2 bath • 3000 ft²
2 bedroom flat for sale in Victoria Drive, Troon, Ayrshire, KA10 — £229,000 • 2 bed • 1 bath • 945 ft²






































































































