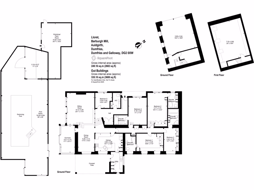
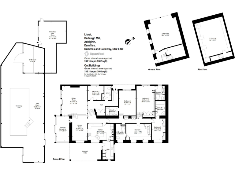
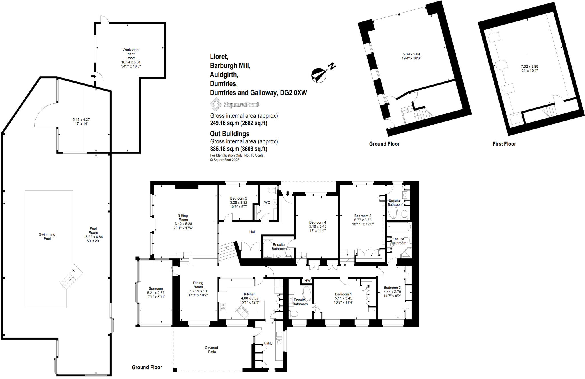
- **Stunning Riverside Property**: Set in the serene village of Auldgirth, this spacious 5-bedroom, 4-bathroom detached home is positioned on approximately 26 acres, including private woodland and meadowland.
- **Unique Features**: Highlights include a private indoor swimming pool (in need of refurbishment), a large landscaped garden, a double garage with electric doors, and a workshop perfect for hobbyists.
- **Peaceful Location**: Nestled along the tranquil riverbank, residents can enjoy well-maintained paths and outdoor seating areas in a picturesque rural setting, all while being conveniently close to local amenities in Dumfries and Thornhill.
- **Room for Improvement**: Although recently refreshed with new carpeting and decor, renovation is required to unlock the full potential of the indoor swimming pool, and certain areas of the home may benefit from further updates.
- **Wildlife Haven**: The property boasts rich biodiversity, providing opportunities for nature lovers and those interested in outdoor activities.
This inviting family home offers a perfect blend of comfort, space, and natural beauty, making it an exceptional opportunity for families or investors seeking a tranquil lifestyle with ample room for renovation and personalization. With its expansive grounds, including a thriving ecosystem, this property promotes a lifestyle of leisure and outdoor exploration. Please be advised that while the setting is idyllic, the property is situated in a flood risk area, which may require careful consideration for future use. Don't miss out on this unique chance to create your dream home in a stunning countryside location!
5 bedroom farm house for sale in Larglanglee House, Crocketford, DG2 — £725,000 • 5 bed • 2 bath • 2926 ft²
5 bedroom detached house for sale in The Steading, Gubhill, Dumfries & Galloway, DG1 — £1,500,000 • 5 bed • 2 bath • 3239 ft²
4 bedroom detached house for sale in Amisfield, Amisfield, Dumfries, Dumfries, DG1 3LH, DG1 — £410,000 • 4 bed • 2 bath • 1950 ft²
5 bedroom detached house for sale in Ardshiel, The Glen, Dumfries, Dumfries and Galloway, South West Scotland, DG2 — £580,000 • 5 bed • 3 bath • 3842 ft²
4 bedroom detached house for sale in Mill Grange, Duncow, DG1 — £895,000 • 4 bed • 3 bath • 4000 ft²
4 bedroom detached house for sale in Glenlorac, Tinwald, Dumfries, DG1 — £560,000 • 4 bed • 3 bath • 4000 ft²






















































































































































































