Substantial rural estate with barn consent and two buildable plots.
Grade II listed Georgian farmhouse circa 5,335 sq ft, strong period features
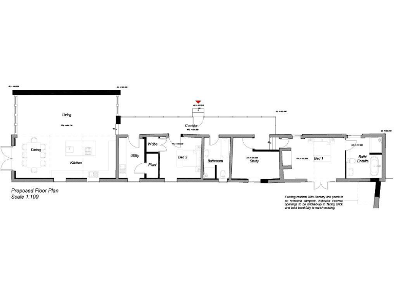
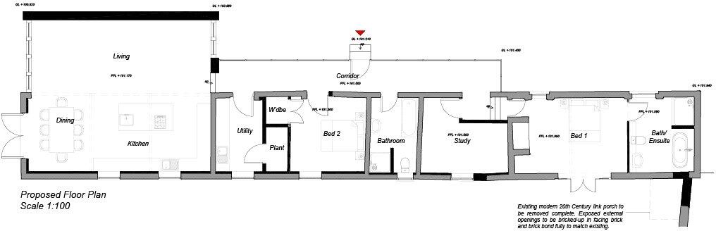
A rare development and country-home combination in Claybrooke Magna: a handsome Grade II listed Georgian farmhouse with extensive period detail, brick barn with consented conversion, and two separate building plots within a private 3.11-acre setting. The main house extends to about 5,335 sq ft across three storeys with high ceilings, sash windows, original joinery and multiple reception rooms — a strong proposition for restoration, subdivision into private wings, or long-term owner occupation. The adjoining brick barn already has full planning to become a 1,570 sq ft dwelling, creating immediate value uplift.
Two additional plots sit discreetly within the grounds. Plot 1 (7,300 sq ft) benefits from full planning for a 3-bed house and double garage; Plot 2 (11,520 sq ft) has outline permission for a similar 3-bed house and garage. Both plots have private drives from the newly constructed access and installed drainage, offering clear development routes subject to completing reserved matters and any listed-building considerations.
Practicalities and constraints are straightforward and material: the farmhouse is Grade II listed, which will restrict alterations and involve specialist consents and higher repair costs. Heating runs from an LPG-fired boiler to radiators and broadband speeds are modest; the area records above-average crime levels. The property is offered freehold and may be sold as a whole or in separate lots — suitable for developers, small builders, or buyers wanting a substantial country home with income or development potential.
Land for sale in Hissar House Farm, Leicester Road, Barwell, LE9 — £950,000 • 5 bed • 3 bath • 2565 ft²
5 bedroom detached house for sale in Wilbarston, Market Harborough, Northamptonshire, LE16 — £1,000,000 • 5 bed • 2 bath • 5974 ft²
6 bedroom character property for sale in Measham Road, Snarestone ,DE12 — £1,200,000 • 6 bed • 1 bath • 3950 ft²
4 bedroom detached house for sale in Tur Langton, Leicestershire, LE8 — £1,250,000 • 4 bed • 2 bath • 5305 ft²
3 bedroom detached house for sale in Brook Farm, Church Lane, Saxelby, LE14 — £600,000 • 3 bed • 1 bath • 2541 ft²
6 bedroom country house for sale in Glebe Farm, Woodway Lane, Claybrooke Parva, LE17 — £895,000 • 6 bed • 3 bath • 2258 ft²






































































































