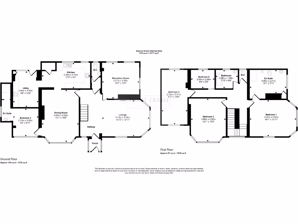
Large plot, five beds and double garage — ideal for a growing family seeking scope.
- Substantial 1930s detached house on a very large, secluded plot
- Five bedrooms; ground-floor bedroom with shower en‑suite
- Master bedroom with en‑suite; three reception rooms
- Long gravel driveway, electric gates, ample parking and double garage
- Lapsed/planned permission (2013) for separate two‑storey dwelling in grounds
- Double glazing and gas central heating (boiler and radiators)
- Typical period property requiring some modernisation to personal taste
- Freehold; low local crime and close to well-rated schools
Set on a very large plot in the desirable Old Town / Summerdown border, Ridgelands is a substantial 1930s detached house offering flexible family accommodation across two floors. The layout includes three reception rooms, a large kitchen with pantry and separate utility, five bedrooms (including a ground-floor bedroom with shower) and a master suite with en‑suite — a practical arrangement for multigenerational living or home working.
The plot and driveway are standout features: electric gates, a long gravel drive, ample parking and a double garage sit behind mature, secluded gardens with lawn, seating areas and a pond. There is scope to enjoy outdoor living and to add value: planning permission was previously granted (2013) for a detached two-storey dwelling within the grounds, a notable opportunity for extension or redevelopment subject to current consents.
Interior rooms are generous, with bay windows and period character alongside modern comforts such as gas boiler heating, double glazing and a fitted kitchen. The house sits in an affluent, low-crime neighbourhood close to good schools and local amenities, making it especially well suited to larger families seeking space and privacy in Eastbourne.
Buyers should note the home is offered freehold and presents typical renovation potential for a 1930s property — some updating may be desired to modernise bathrooms, kitchen finishes, and services to personal taste. Interested purchasers are advised to verify planning, services and building regulations if pursuing the previously granted permission or other alterations.
3 bedroom detached house for sale in Old Camp Road, Eastbourne, BN20 8DH, BN20 — £925,000 • 3 bed • 2 bath • 1755 ft²
5 bedroom detached house for sale in Rectory Close, Eastbourne, BN20 8AQ, BN20 — £1,100,000 • 5 bed • 2 bath • 2228 ft²
4 bedroom detached house for sale in Willingdon Road, Eastbourne, BN21 1TR, BN21 — £670,000 • 4 bed • 1 bath • 1652 ft²
4 bedroom detached house for sale in Summerdown Road, Eastbourne, BN20 8DQ, BN20 — £815,000 • 4 bed • 2 bath • 1722 ft²
5 bedroom house for sale in Willingdon Road, Eastbourne, BN21 — £685,000 • 5 bed • 2 bath • 1794 ft²
4 bedroom detached house for sale in Fairway Close, Eastbourne, BN20 — £1,250,000 • 4 bed • 3 bath • 416 ft²


























































































