Two-bedroom home with garden, planning consent and strong commuter links.
Bright front double bedroom with abundant natural light
Planning permission granted for potential extension
Large rear garden with scope for landscaping or expansion
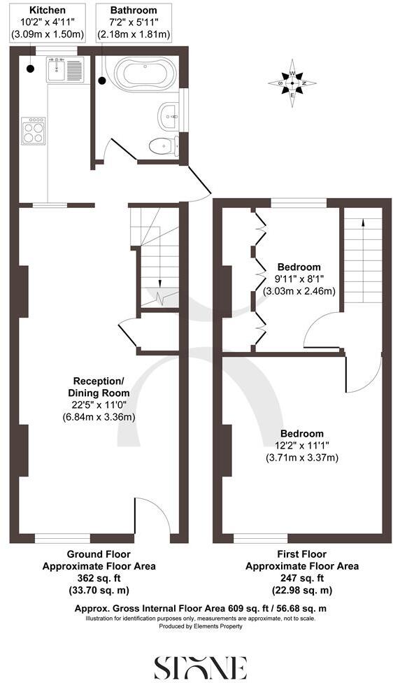
Small overall footprint — approx. 609 sq ft
Solid-brick Victorian build; likely no wall insulation
Requires internal modernisation and possible energy upgrades
Off-street forecourt parking available for a larger car
Freehold tenure; mains gas central heating and double glazing
Set on a quiet street in desirable Reigate, this two-bedroom end-of-terrace blends period character with clear scope for improvement. The principal bedroom at the front is a bright double, and the living room retains a welcoming fireplace and built-in storage. A good-sized rear garden offers outdoor potential, while off-street forecourt parking is uncommon for this type of home.
The property is best for buyers who value location and potential over turnkey condition. Planning permission is already granted for extensions, making the house a practical canvas to add living space or reconfigure layouts. The solid-brick construction and double glazing provide a sound starting point, though assumed lack of wall insulation and small overall footprint mean energy upgrades and careful design will be needed.
Practical positives include freehold tenure, mains gas central heating with boiler and radiators, low local crime, fast broadband and excellent mobile signal. Reigate town centre, strong local schools and a ten-minute walk to the train station make the location appealing for families and commuters. Council tax band is moderate.
Notable drawbacks are the modest internal size (approximately 609 sq ft), the small plot, and the likely need for internal modernisation to meet contemporary living standards. Buyers should budget for refurbishment works (insulation, possible kitchen/bathroom upgrades) despite the benefit of approved plans. This house will suit someone seeking a character home they can personalise or an investor wanting a property with extension upside.
5 bedroom detached house for sale in Croydon Road, Reigate, RH2 — £925,000 • 5 bed • 2 bath • 1245 ft²
5 bedroom semi-detached house for sale in Chart Lane, Reigate, RH2 — £1,000,000 • 5 bed • 2 bath • 1683 ft²
3 bedroom end of terrace house for sale in Lesbourne Road, Reigate, RH2 — £600,000 • 3 bed • 1 bath • 1186 ft²
6 bedroom house for sale in Croydon Road, Reigate, RH2 — £1,400,000 • 6 bed • 2 bath • 3451 ft²
3 bedroom semi-detached house for sale in Holmesdale Road, Reigate, RH2 — £700,000 • 3 bed • 1 bath • 874 ft²
3 bedroom house for sale in Lesbourne Road, Reigate, RH2 — £650,000 • 3 bed • 1 bath • 870 ft²














































































