Exceptional size and leisure space for large families seeking privacy and style.
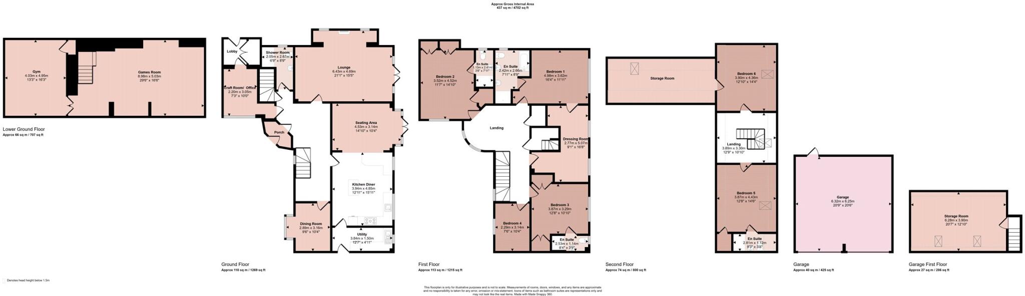
- Substantial 4,700 sqft individual detached home over four floors
- Six double bedrooms, four en-suites including luxury principal suite
- Impressive lower-level entertaining: cinema, bar, games room, gym
- Large south-facing garden plus outdoor garden/hot tub room
- Secure electric-gated block-paved forecourt and double garage
- High-quality bespoke cabinetry and upgraded bathroom fittings
- Energy Rating C; mains gas heating and double glazing
- Council Tax Band G and four-storey layout increase running demands
A rare, individually built detached home offering nearly 4,700 sqft across four floors, designed for large-family living and serious entertaining. The lower-level leisure wing is a real showpiece — home cinema, integrated bar, games area and full-size gym — while the upper floors provide six double bedrooms including a principal suite with walk-through dressing room and luxury bathroom.
The house sits behind electric gates on a large plot with a block-paved forecourt, double garage with room over and an extensive south-facing garden with a dedicated outdoor garden/hot tub room. High-quality fixtures, bespoke cabinetry and upgraded en-suites are evident throughout, and the property benefits from mains gas central heating and double glazing. Energy Rating C provides reasonable efficiency for a house of this size.
Practical considerations are clear and important: accommodation is spread over four floors, so the layout may be unsuitable for those with limited mobility. Council Tax Band G and the scale of the property indicate above-average running and maintenance costs. The property is Freehold and located in a desirable village setting with good local schools and easy road access to the M1/M42.
This home will suit a large or multi-generational family, buyers seeking high-end living and serious entertainment space, or purchasers wanting a prominent, private plot in Thringstone. Buyers should budget for ongoing upkeep and factor the vertical layout into daily living logistics.
3 bedroom detached bungalow for sale in Hensons Lane, Thringstone, Coalville, LE67 — £340,000 • 3 bed • 1 bath • 2829 ft²
6 bedroom detached house for sale in Ashby Road, Burton-On-Trent, Staffordshire, DE15 0PP, DE15 — £1,500,000 • 6 bed • 3 bath • 6000 ft²
5 bedroom detached house for sale in Stanleigh Gardens, Donisthorpe, DE12 — £700,000 • 5 bed • 4 bath • 2597 ft²
6 bedroom detached house for sale in Sutton Lane, Sutton In The Elms, LE9 — £900,000 • 6 bed • 1 bath • 3000 ft²
5 bedroom link detached house for sale in Chapel Rise, Worthington, Ashby-De-La-Zouch, LE65 — £435,000 • 5 bed • 2 bath • 1500 ft²
7 bedroom detached house for sale in Barton Road, Market Bosworth, CV13 — £2,650,000 • 7 bed • 5 bath • 8000 ft²


















































































































































