Refitted interior, small garden and strong local schools ideal for first-time buyers.
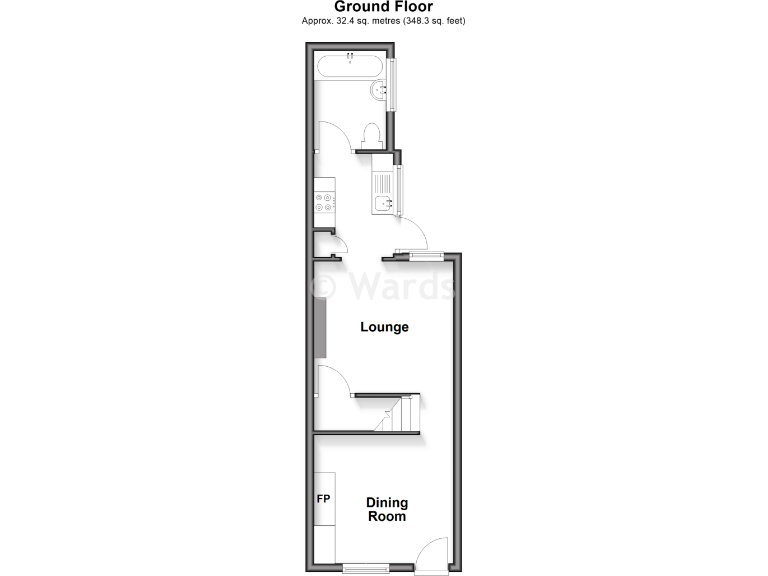
Two double bedrooms and separate dining room
This end-terrace has been sympathetically improved to retain period character while offering contemporary comforts. The lounge and separate dining room provide flexible living space, and the refitted kitchen and bathroom mean you can move in with minimal immediate work. Two double bedrooms sit upstairs alongside a landing and family bathroom.
Practical benefits include replacement double-glazed windows and doors, mains gas central heating with a boiler and radiators, freehold tenure and fast broadband with excellent mobile signal — useful for those working from home. A small rear garden and front garden provide outdoor space in a popular residential area close to good primary and secondary schools and local amenities.
Size and layout suit buyers seeking a compact family home or a first purchase: overall space is modest (approximately 689 sq ft) and rooms are average to small. The plot is small and the property was built c.1900–1929, so external walls are likely uninsulated (assumed sandstone/limestone), which may affect running costs unless upgraded. Council tax is described as cheap and flood risk is low.
For buyers wanting a turn-key period home in Maidstone with nearby schooling and transport links, this house offers genuine value. Those seeking large open-plan living, expansive gardens, or a newly insulated envelope should note the size and likely wall insulation status before viewing.
2 bedroom terraced house for sale in Varnes Street, Eccles, Aylesford, Kent, ME20 — £265,000 • 2 bed • 1 bath • 619 ft²
2 bedroom terraced house for sale in Kingsley Road, MAIDSTONE, Kent, ME15 — £300,000 • 2 bed • 1 bath • 1001 ft²
2 bedroom terraced house for sale in Thornhill Place, Maidstone, Kent, ME14 — £240,000 • 2 bed • 1 bath • 560 ft²
2 bedroom terraced house for sale in Tonbridge Road, Maidstone, Kent, ME16 — £250,000 • 2 bed • 1 bath • 1034 ft²
2 bedroom terraced house for sale in Kingsley Road, Maidstone, ME15 — £250,000 • 2 bed • 1 bath • 896 ft²
3 bedroom terraced house for sale in Melville Road, Maidstone, Kent, ME15 — £260,000 • 3 bed • 1 bath • 685 ft²






















































