Comfortable family house with garage, garden and easy city access.
Three-bedroom detached with open-plan living and conservatory
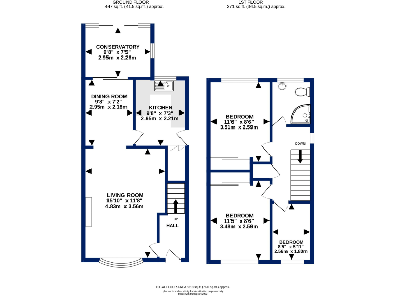
Set in sought-after Calverley, this three-bedroom detached home offers comfortable family living with easy commuter links to Leeds and Bradford. The ground floor features an open-plan living/dining room that flows into a conservatory, giving extra light and a direct connection to the paved rear garden. A modern kitchen and bathroom reduce immediate updating, while gas central heating and double glazing improve day-to-day efficiency.
Upstairs are two double bedrooms with fitted wardrobes and a single third bedroom, suitable as a child’s room or home office. Practical extras include an under-stairs store, driveway parking and a single garage. The small front lawn and paved rear garden keep maintenance low while providing private outdoor space.
Notable points: the property sits in a generally affluent area but records above-average local crime; the EPC is E and the home dates from the late 1960s–1970s, so buyers should factor in medium-term energy improvements. The house is freehold, offered with no onward chain, and will particularly suit families or commuters seeking a well-located, low-maintenance detached home with immediate move-in potential.
3 bedroom detached house for sale in Carr Road, Calverley, Pudsey, West Yorkshire, LS28 — £345,000 • 3 bed • 1 bath • 1129 ft²
3 bedroom semi-detached house for sale in Thornhill Street, Calverley, Pudsey, West Yorkshire, LS28 — £290,000 • 3 bed • 1 bath • 667 ft²
3 bedroom semi-detached house for sale in Carr Hill Road, Calverley, Pudsey, West Yorkshire, LS28 — £360,000 • 3 bed • 1 bath • 842 ft²
3 bedroom detached house for sale in Cliffe Park Close, Leeds, LS12 — £299,950 • 3 bed • 1 bath • 1063 ft²
4 bedroom semi-detached house for sale in Woodhall Road, Calverley, Pudsey, West Yorkshire, LS28 — £385,000 • 4 bed • 2 bath • 1279 ft²
3 bedroom terraced house for sale in Salisbury Street, Calverley, Pudsey, West Yorkshire, LS28 — £335,000 • 3 bed • 1 bath • 1211 ft²


































































