**Key Features:**
- Unique 5-bedroom detached country home with a contemporary design
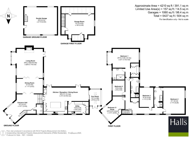
- Spacious 4,210 sq. ft. layout set on a sprawling 1-acre plot
- High-quality finishes with oak flooring, underfloor heating, and multi-fuel stove
- Large double garage with potential for multi-generational living (subject to planning)
- Enviable rural setting just 10 minutes from Welshpool amenities
- Generous gardens with fruit trees and a stream bordering the property
Nestled in the scenic countryside of Hope, Leighton, this individually designed family home is a remarkable blend of modern luxury and rustic charm. Built in 2006, this substantial 5-bedroom property spans over 4,210 sq. ft., offering generous living spaces perfect for families or multi-generational living. The home boasts high ceilings and bright, airy rooms thanks to large windows that frame stunning views of the surrounding countryside.
The heart of the home features a well-appointed kitchen with granite work surfaces, a family area, and a sun room that invites peaceful afternoons in a tranquil setting. Upstairs, the flexible layout includes a master suite with an ensuite and three additional spacious bedrooms, ideal for families. A well-maintained exterior includes a large garden, paved entertaining space, and an expansive driveway providing ample parking.
While this property offers a serene escape just a short drive from Welshpool's shops, schools, and restaurants, it also presents exciting renovation potential, especially for its detached double garage, perfect for conversion into additional living space. This unique opportunity will not last long—secure your family’s dream home today in a landscape where comfort meets convenience and nature thrives!
5 bedroom detached house for sale in Hafan Heulog, Ffordd Y Cain, Llanfyllin., SY22 — £630,000 • 5 bed • 5 bath • 2889 ft²
5 bedroom detached house for sale in Glanyrafon Farm, Llanyblodwel, Oswestry, SY10 — £725,000 • 5 bed • 3 bath • 2206 ft²
5 bedroom detached house for sale in Trem Hirnant, Manafon, Welshpool, SY21 — £350,000 • 5 bed • 2 bath • 1880 ft²
4 bedroom country house for sale in Lledrod, Nr Llansilin, SY10 7JW, SY10 — £680,000 • 4 bed • 3 bath • 4521 ft²
5 bedroom detached house for sale in Churchstoke, Montgomery, SY15 — £640,000 • 5 bed • 2 bath • 2137 ft²
3 bedroom detached house for sale in Bwlch-y-Cibau, Llanfyllin, Powys, SY22 — £500,000 • 3 bed • 3 bath • 2196 ft²


















































































































































































