Quiet cul-de-sac living with garden, parking and excellent local schools.
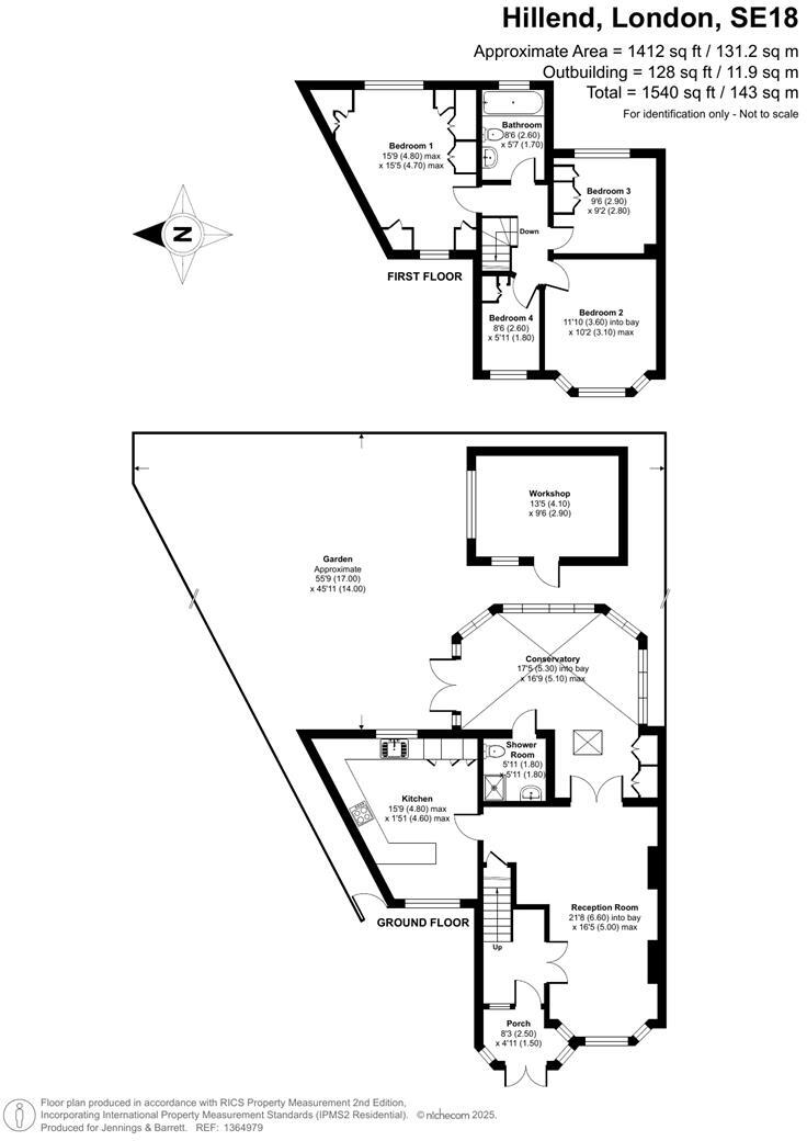
- Four bedrooms and two reception rooms, family-focused layout
- Spacious private rear garden, secluded and landscaped patio
- Off-street driveway parking for multiple vehicles
- Period semi-detached house, built 1930s–1940s
- Double glazing installed before 2002 (may be aging)
- Solid brick walls, assumed no cavity insulation
- Mains gas boiler and radiators for heating
- Average local crime; moderate council tax band
A spacious four-bedroom semi-detached family home on a quiet Hillend cul-de-sac, offering practical living across a multi-story layout. The house has two reception rooms, a family kitchen with breakfast bar and a generous private garden — a strong fit for families who need space, parking and outdoor privacy. City views add a surprising urban aspect while maintaining a leafy, suburban feel.
The property is presented in good decorative order with period features such as bay windows and a paved driveway providing off-street parking. Construction dates to the 1930s–1940s, and the home benefits from mains gas central heating and double glazing already installed (pre-2002). Nearby green spaces, well-regarded schools including Christ Church Primary, and straightforward bus links to the Elizabeth line make this an attractive commuter and family location.
Buyers should note a few practical considerations: the house has solid brick walls with no assumed cavity insulation, so thermal upgrades would improve efficiency and comfort. The glazing and some services may be older given the property’s era and previous upgrades. Council tax is moderate and the area records average crime levels. Overall, the home offers a blend of immediate liveability and sensible scope for targeted improvements to add value.
3 bedroom house for sale in Moordown, Shooters Hill, SE18 — £550,000 • 3 bed • 1 bath • 866 ft²
2 bedroom semi-detached house for sale in Shooters Hill, London, SE18 — £500,000 • 2 bed • 1 bath • 765 ft²
4 bedroom terraced house for sale in Moordown, London, SE18 — £725,000 • 4 bed • 2 bath • 1275 ft²
3 bedroom semi-detached house for sale in Brinklow Crescent, Shooters Hill, SE18 — £565,000 • 3 bed • 1 bath • 1170 ft²
3 bedroom semi-detached house for sale in Red Lion Lane, London, SE18 — £575,000 • 3 bed • 1 bath
4 bedroom semi-detached house for sale in Brent Road, London, SE18 — £525,000 • 4 bed • 1 bath • 1023 ft²










































































