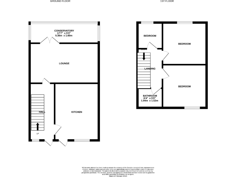
**Standout Features:**
- 3 spacious bedrooms
- Modern kitchen and bright living room with fireplace
- Private garden with patio and conservatory
- Off-street parking
- Freehold status
- Conveniently located near local amenities and schools
- Fast broadband and excellent mobile signal
**Potential Concerns:**
- Area crime rate is very high
- Located in a multi-ethnic hardship neighborhood
- Local area is considered very deprived
**Summary:**
Discover this charming semi-detached house in a vibrant but challenging area, ideal for families seeking both comfort and opportunity. With three spacious bedrooms and a bright living room featuring a cozy fireplace, this home is designed for modern living. The well-maintained garden, complete with a patio and conservatory, offers a serene outdoor retreat perfect for relaxation or gatherings.
Located in postcode L20 2QA, this property provides excellent connectivity to local amenities and outstanding schools, including St Francis de Sales Catholic Junior School, making it perfect for families. Off-street parking adds to the convenience, while fast broadband and excellent mobile signal ensure connectivity in your new home.
Despite the benefits, this area does present high crime rates and is categorized as a deprived neighbourhood, which may be a consideration for potential buyers. Nonetheless, this freehold property offers future renovation potential and an excellent opportunity to secure a charming family home at an attractive price of £170,000. Act fast to explore this unique opportunity!
3 bedroom semi-detached house for sale in Ingrave Road, Liverpool, Merseyside, L4 — £150,000 • 3 bed • 1 bath • 808 ft²
3 bedroom terraced house for sale in Manorbier Crescent, Liverpool, Merseyside, L9 — £125,000 • 3 bed • 2 bath • 862 ft²
3 bedroom semi-detached house for sale in Bushey Road, Liverpool, Merseyside, L4 — £180,000 • 3 bed • 1 bath • 921 ft²
3 bedroom semi-detached house for sale in Carr Road, Bootle, Merseyside, L20 — £160,000 • 3 bed • 1 bath • 826 ft²
3 bedroom end of terrace house for sale in Sandyville Road, Liverpool, Merseyside, L4 — £185,000 • 3 bed • 1 bath • 1098 ft²
3 bedroom semi-detached house for sale in Pine Grove, Waterloo, Liverpool, Merseyside, L22 — £280,000 • 3 bed • 1 bath • 956 ft²


































































































