Affordable chain-free entry close to station and town centre.
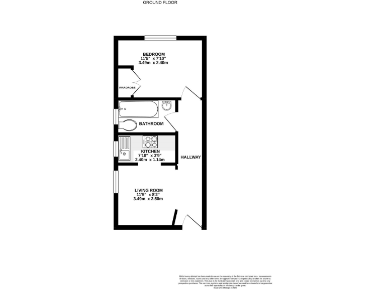
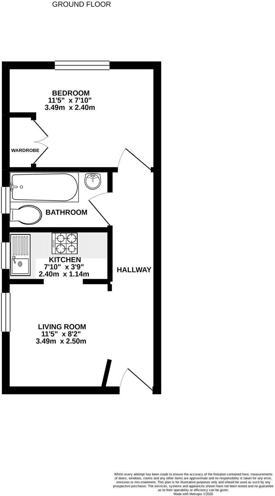
Ground-floor one double bedroom apartment, compact 302 sq ft
This ground-floor one-bedroom apartment in a Victorian end-of-terrace offers a genuinely affordable entry into Aldershot town centre. With a long lease of 990 years and chain-free sale, it suits first-time buyers seeking low initial hurdles or investors after a simple rental-let.
The flat provides an open-plan living room with kitchenette, a double bedroom and a bathroom, all within a compact 302 sq ft footprint. Double glazing and mains gas central heating mean practical, low-effort living, while a communal rear garden and resident off-street parking add useful outdoor and parking space.
Buyers should note the apartment’s limited internal space and modest communal garden — it’s designed for efficient, not expansive, living. The service charge is £1,590 per annum and the EPC is D (68). The building is an early-20th-century solid-brick terrace with no known insulation in the walls, so further energy improvements are possible if desired.
Positioned within walking distance of the town centre and mainline station, the property benefits from excellent transport links and local amenities. However, the wider area records higher deprivation levels; prospective buyers should view the location in person to assess suitability for family life or rental demand.
1 bedroom flat for sale in Ascot Court, Aldershot, Hampshire, GU11 — £130,000 • 1 bed • 1 bath • 463 ft²
1 bedroom flat for sale in St. Georges Road, Aldershot, Hampshire, GU12 — £145,000 • 1 bed • 1 bath • 313 ft²
1 bedroom flat for sale in St. Michaels Road, Aldershot, Hampshire, GU12 — £130,000 • 1 bed • 1 bath • 392 ft²
1 bedroom flat for sale in Alice Road, Aldershot, Hampshire, GU11 — £145,000 • 1 bed • 1 bath • 360 ft²
1 bedroom flat for sale in Ascot Court, Aldershot, Hampshire, GU11 — £110,000 • 1 bed • 1 bath • 345 ft²
2 bedroom flat for sale in Ascot Court, Aldershot, Hampshire, GU11 — £180,000 • 2 bed • 1 bath • 513 ft²






























