Generous single-level living with private terrace steps from York city centre.
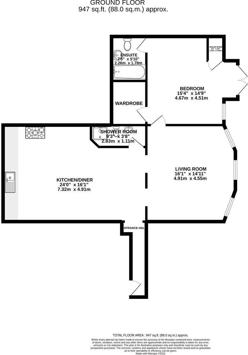
- Approximately 947–1,000 sq ft of single-level living space
- Private terrace plus well-maintained communal lawned gardens
- Large principal bedroom with en suite and walk-in wardrobe
- Allocated off-street parking space to the front
- Recently refurbished interior; gas central heating installed
- Grade II listed building — restrictions and consents likely
- Leasehold tenure; check service charges and lease terms
- One-bedroom layout may limit wider buyer pool
This ground-floor apartment in Ambassador Court occupies nearly 1,000 sq ft and feels more like a small house than a typical one-bedroom flat. The recently refurbished, open-plan kitchen/dining room links to a generous bay-fronted living room; both rooms open onto a private terrace and well-kept communal lawned gardens, giving easy indoor–outdoor living on one level.
The principal bedroom is unusually large for a one-bedroom unit and includes a walk-in wardrobe and en suite bathroom. Practical benefits include an allocated off-street parking space, gas central heating with boiler and radiators, and excellent mobile signal. The Mount’s central position places shops, restaurants, good schools, the racecourse and the city centre within a short walk; the station is also conveniently close for rail travel.
Important practical notes: the apartment is leasehold and in a Grade II listed building — this adds character but may bring restrictions, listed-building responsibilities and potential complications for alterations. The one-bedroom layout will limit buyer pools compared with multi-bedroom properties, and occupants should check lease terms, service charges and any listed-building consents required for future works.
Overall, the apartment suits a buyer seeking generous single-level living with period character and outside space in one of York’s premier streets — particularly downsizers or those wanting an exceptionally large one-bedroom home close to the city centre. The finish is recently updated, so major structural works do not appear necessary, though listed-status constraints and leasehold arrangements should be confirmed before purchase.
2 bedroom apartment for sale in Ambassador Court, The Mount, York, YO24 — £550,000 • 2 bed • 2 bath • 1606 ft²
2 bedroom apartment for sale in Driffield Terrace, The Mount, YO24 — £460,000 • 2 bed • 1 bath • 1088 ft²
3 bedroom apartment for sale in Mill Mount, York, YO24 — £725,000 • 3 bed • 2 bath • 2181 ft²
1 bedroom flat for sale in The Mount, York, YO24 — £239,995 • 1 bed • 1 bath • 695 ft²
2 bedroom apartment for sale in Mill Mount, York, North Yorkshire, YO24 — £240,000 • 2 bed • 1 bath • 671 ft²
3 bedroom flat for sale in Driffield Terrace, York, North Yorkshire, YO24 — £375,000 • 3 bed • 2 bath • 1061 ft²










































































