Renovation-ready home with large gardens, woodland access and no onward chain.
Approximately 0.3 acre garden with direct woodland access
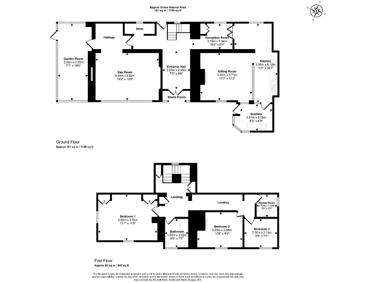
A substantial linked detached cottage set within about 0.3 acre of gardens and direct woodland access — ideal for someone seeking space and character. The house provides 1,794 sq ft of accommodation with three reception rooms and three bedrooms, giving scope to reconfigure for modern family living or create separate work/studio areas.
The property is a genuine renovation project. Many original features remain, including exposed timbers, a large Bressumer-beamed fireplace and wood panelling, but both bathroom and shower room require replacement and the kitchen contains an old oil-fired range. Energy Efficiency Rating is F and overall the house needs modernisation throughout.
Practical benefits include a wide tarmac drive with ample off-street parking (room for caravan or boat), a large outbuilding/timber garage with light and power, and possible scope for an additional plot (subject to planning). The sale is chain-free so work can start without delay. Be aware the local crime level is reported as high and some wall insulation is assumed absent, so budgets should allow for security and energy improvements.
3 bedroom end of terrace house for sale in Well Lane, Shaftesbury, SP7 — £570,000 • 3 bed • 2 bath • 1499 ft²
3 bedroom house for sale in Salisbury Street, Shaftesbury, Dorset, SP7 — £435,000 • 3 bed • 1 bath • 1500 ft²
2 bedroom detached house for sale in Love Lane, Shaftesbury, SP7 — £299,950 • 2 bed • 1 bath • 607 ft²
3 bedroom semi-detached house for sale in Church Hill, Shaftesbury, SP7 — £400,000 • 3 bed • 1 bath • 1301 ft²
2 bedroom cottage for sale in Mill Lane, Stour Provost, Gillingham, SP8 — £250,000 • 2 bed • 1 bath • 1015 ft²
2 bedroom house for sale in Well Lane, Shaftesbury, SP7 8LP, SP7 — £300,000 • 2 bed • 1 bath • 872 ft²


























































































