**Standout Features:**
- Spacious 5-bedroom townhouse
- 3 bathrooms, ideal for large families
- Victorian architecture with original features
- High ceilings and bay windows
- Enclosed paved rear patio and small front garden
- Garage for parking and storage
- Prime location on Esplanade Avenue, close to town centre and promenade
- Excellent broadband speeds and mobile signal
**Potential Concerns:**
- High crime rates in the area
- Above-average council tax
- Property walls may lack insulation
- Located in a deprived area
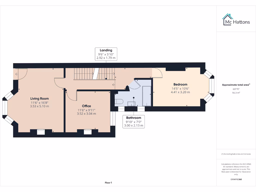
Nestled on the coveted Esplanade Avenue in Porthcawl, this impressive Victorian townhouse offers an exceptional blend of historical charm and modern convenience. With ample space spread across 1,853 square feet, the home features five well-sized bedrooms, three bathrooms, and versatile living areas perfect for families or entertaining. The property showcases attractive period features, including stunning bay windows, high ceilings, and decorative fireplaces that enhance its character.
Enter the ground floor to find a welcoming entrance hall leading into a dining room and a spacious kitchen/breakfast room, alongside practical utilities. The second floor hosts two double bedrooms, one with an en-suite shower room, providing a private retreat, while the first floor reveals a bright lounge and family bathroom for additional comfort.
Outside, enjoy a low-maintenance front garden and a fully paved rear patio, ideal for leisure or gatherings with loved ones. With the beautiful beach and local amenities just a short walk away, this home is a wonderful opportunity for those seeking a vibrant coastal lifestyle. While the property is set in an area with elevated crime rates and above-average council tax, its unique charm and potential for enhancements make it worth considering. Don’t let this opportunity slip away; envision creating your dream home in this delightful setting.
5 bedroom town house for sale in Esplanade Avenue, Porthcawl, CF36 — £500,000 • 5 bed • 2 bath • 1624 ft²
5 bedroom town house for sale in 33, Esplanade Avenue, Porthcawl, CF36 — £475,000 • 5 bed • 5 bath • 1574 ft²
5 bedroom terraced house for sale in Church Place, Porthcawl, CF36 3AG, CF36 — £375,000 • 5 bed • 2 bath • 1519 ft²
5 bedroom terraced house for sale in Mary Street, Porthcawl, CF36 3YN, CF36 — £400,000 • 5 bed • 2 bath • 2206 ft²
4 bedroom terraced house for sale in Esplanade Avenue, Porthcawl, CF36 3YU, CF36 — £500,000 • 4 bed • 3 bath • 2279 ft²
5 bedroom town house for sale in Blundell Avenue, Porthcawl, CF36 — £525,000 • 5 bed • 3 bath • 1826 ft²






















































































































