Single-level home with garage, garden and scope to modernise.
No onward chain — ready for quick completion
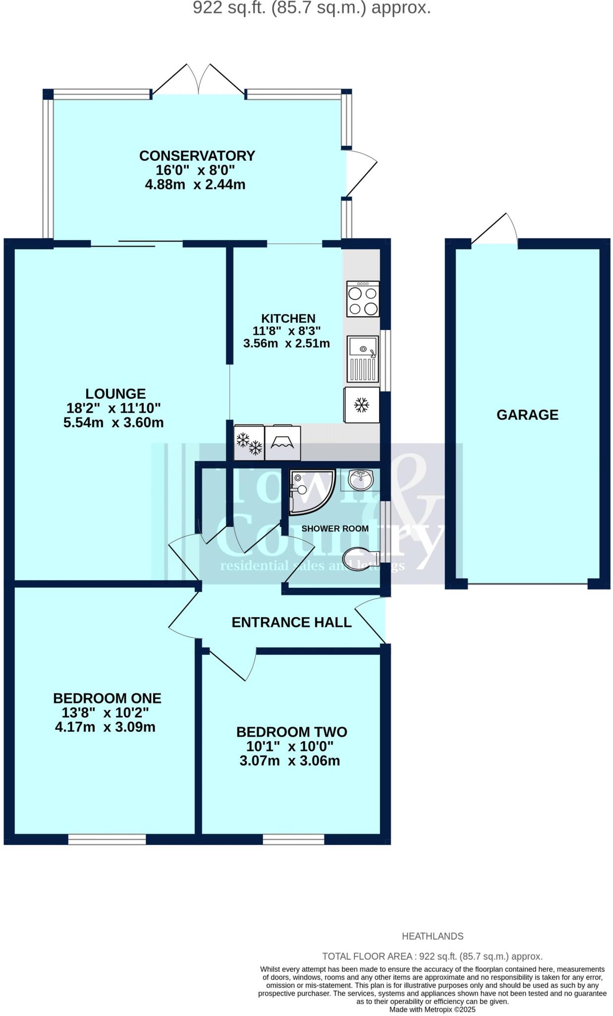
A chain-free, two-bedroom bungalow in a quiet Thorrington cul-de-sac, ideal for buyers seeking single-storey living with scope to personalise. The layout delivers a large lounge that opens to a conservatory, a light kitchen with garden views, two double bedrooms and a shower-room — practical and straightforward for step-down living.
Externally the plot is a strong asset: a decent rear garden that has been lovingly maintained, a large shed currently used as a family snooker room, driveway parking and an attached single garage. Mains gas central heating, double glazing and good broadband/mobile connectivity suit everyday comfort and remote working.
The property does require modernisation in places — described as needing renovation — so expect cosmetic upgrades and some updating to make it your own. The bungalow is freehold, has no onward chain and sits in a low-crime, village setting close to local schools and amenities. This is a pragmatic choice for downsizers or buyers wanting a manageable garden and single-level living with clear potential.
2 bedroom semi-detached house for sale in Heathlands, Thorrington, CO7 — £270,000 • 2 bed • 1 bath • 614 ft²
2 bedroom semi-detached bungalow for sale in Leys Road, Wivenhoe, CO7 — £285,000 • 2 bed • 1 bath • 496 ft²
2 bedroom semi-detached bungalow for sale in Paddock Way, Wivenhoe, CO7 — £285,000 • 2 bed • 1 bath • 440 ft²
3 bedroom detached bungalow for sale in Thelma Drive Clacton Road, Thorrington, Colchester, CO7 — £375,000 • 3 bed • 2 bath • 980 ft²
2 bedroom semi-detached bungalow for sale in Colchester Road, Clacton-On-Sea, CO16 — £280,000 • 2 bed • 2 bath • 743 ft²
2 bedroom detached bungalow for sale in Crome Road, Clacton on Sea, CO16 — £260,000 • 2 bed • 1 bath • 826 ft²


























































































