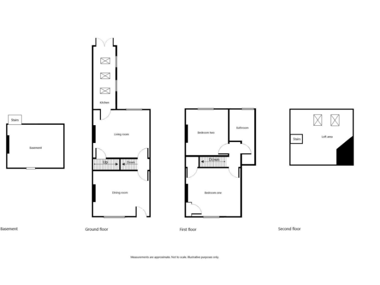
**Standout Features:**
- Charming Victorian terraced property with period features
- Two bedrooms plus a spacious loft area
- Converted basement providing extra living space
- Modern kitchen with skylights and breakfast bar
- Conveniently located within walking distance to Harborne High Street
- Chain-free sale
- Small rear garden with side access
**Summary:**
Discover the perfect blend of Victorian charm and modern living in this spacious mid-terraced property located in the desirable Harborne neighborhood. With two well-proportioned bedrooms, a loft area ideal for an office or extra storage, and a unique converted basement, this home offers flexible living options suitable for families or young professionals alike. The inviting living room features built-in shelves and a gas fireplace, while the traditional dining room gracefully opens to the modern kitchen, enhanced by skylights that flood the space with natural light.
The property is set back from the street, boasting a quaint foregarden and easy access to a variety of local amenities. Enjoy the convenience of nearby transport links to city center attractions, alongside proximity to local primary schools rated 'Good' to 'Outstanding'. The compact rear garden provides a peaceful spot for relaxation or gatherings. Although the solid brick walls suggest limited insulation, this property presents an exciting opportunity for potential buyers looking to invest in a thriving area. Schedule your viewing today – opportunities like this don't last long!
2 bedroom terraced house for sale in High Street, Harborne, Birmingham, B17 — £285,000 • 2 bed • 1 bath • 958 ft²
4 bedroom terraced house for sale in Station Road, Harborne, Birmingham, B17 — £499,950 • 4 bed • 2 bath • 1667 ft²
3 bedroom house for sale in Clarence Road, Harborne, Birmingham, B17 — £390,000 • 3 bed • 1 bath • 1497 ft²
3 bedroom terraced house for sale in Greenfield Road, Harborne, Birmingham, B17 0EE, B17 — £475,000 • 3 bed • 2 bath • 1240 ft²
2 bedroom terraced house for sale in Station Road, Harborne, Birmingham, B17 — £370,000 • 2 bed • 1 bath • 774 ft²
3 bedroom terraced house for sale in Regent Road, Harborne, Birmingham, B17 — £450,000 • 3 bed • 2 bath • 1045 ft²






































































































