**Standout Features:**
- Two bright double bedrooms with ample natural light
- Spacious corner lounge with stunning five-panel bay window and original fireplace
- Large kitchen with generous workspace and dining area
- Modern bathroom with three-piece suite and over-bath shower
- Victorian red sandstone tenement in a quiet, tree-lined street
- Secure entry, well-maintained communal spaces, and tidy residents' garden
- Excellent transport links, close to Hyndland train station
**Potential Concerns:**
- Property requires verification of measurements and service details
- Above-average council tax
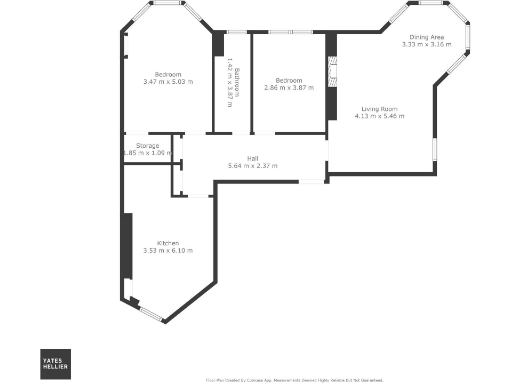
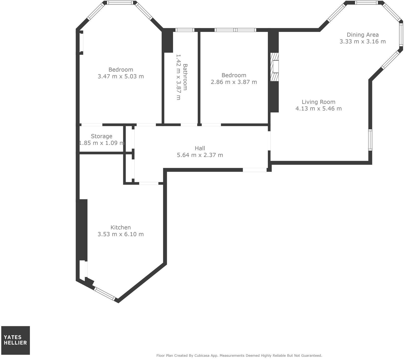
Nestled in the highly desirable Hyndland area, this exceptional two-bedroom top-floor flat at 99 Queensborough Gardens beautifully marries traditional charm with modern convenience. The sunlit corner lounge features a striking five-panel bay window, soaring ceilings, and a cozy fireplace, perfect for relaxation or entertaining. The generously sized kitchen provides ample worktop and storage space, making it ideal for everyday living. Both bedrooms are spacious, flooded with light, and boast delightful views, with the principal bedroom offering a broad bay window and open aspect.
Further enhancing this property is a contemporary bathroom, gas central heating, and a secure entry. Residents can enjoy well-kept communal areas and a tidy garden, all maintained by a dedicated factor. Ideally located a short stroll from vibrant boutiques, cafés, and top-rated schools, this flat offers seamless access to transport links, including Hyndland train station just minutes away, ensuring excellent connectivity to Glasgow city centre and beyond.
With property prices on the rise in this amenity-rich neighbourhood, this flat presents an outstanding opportunity for professionals, young couples, and families seeking a blend of comfort, style, and convenience. Don’t miss your chance to own a piece of Hyndland's charm!
2 bedroom flat for sale in 0/2 103 Queensborough Gardens, Hyndland, G12 9RS, G12 — £269,000 • 2 bed • 1 bath • 893 ft²
2 bedroom flat for sale in 3/2 43 Queensborough Gardens, Hyndland, G12 9QP, G12 — £269,000 • 2 bed • 1 bath • 1001 ft²
2 bedroom flat for sale in 3/2 68 Queensborough Gardens, Hyndland, G12 9TU, G12 — £285,000 • 2 bed • 1 bath • 904 ft²
2 bedroom flat for sale in 64 Polwarth Street, Hyndland, G12 — £315,000 • 2 bed • 1 bath • 1098 ft²
2 bedroom flat for sale in 0/2 71 Queensborough Gardens, Hyndland, G12 9TT, G12 — £339,000 • 2 bed • 1 bath • 969 ft²
4 bedroom flat for sale in 134 Hyndland Road, Hyndland, G12 — £495,000 • 4 bed • 2 bath • 1668 ft²






































































