Well-presented two-bedroom flat with long lease and parking.
Short walk to seafront, marina and town centre
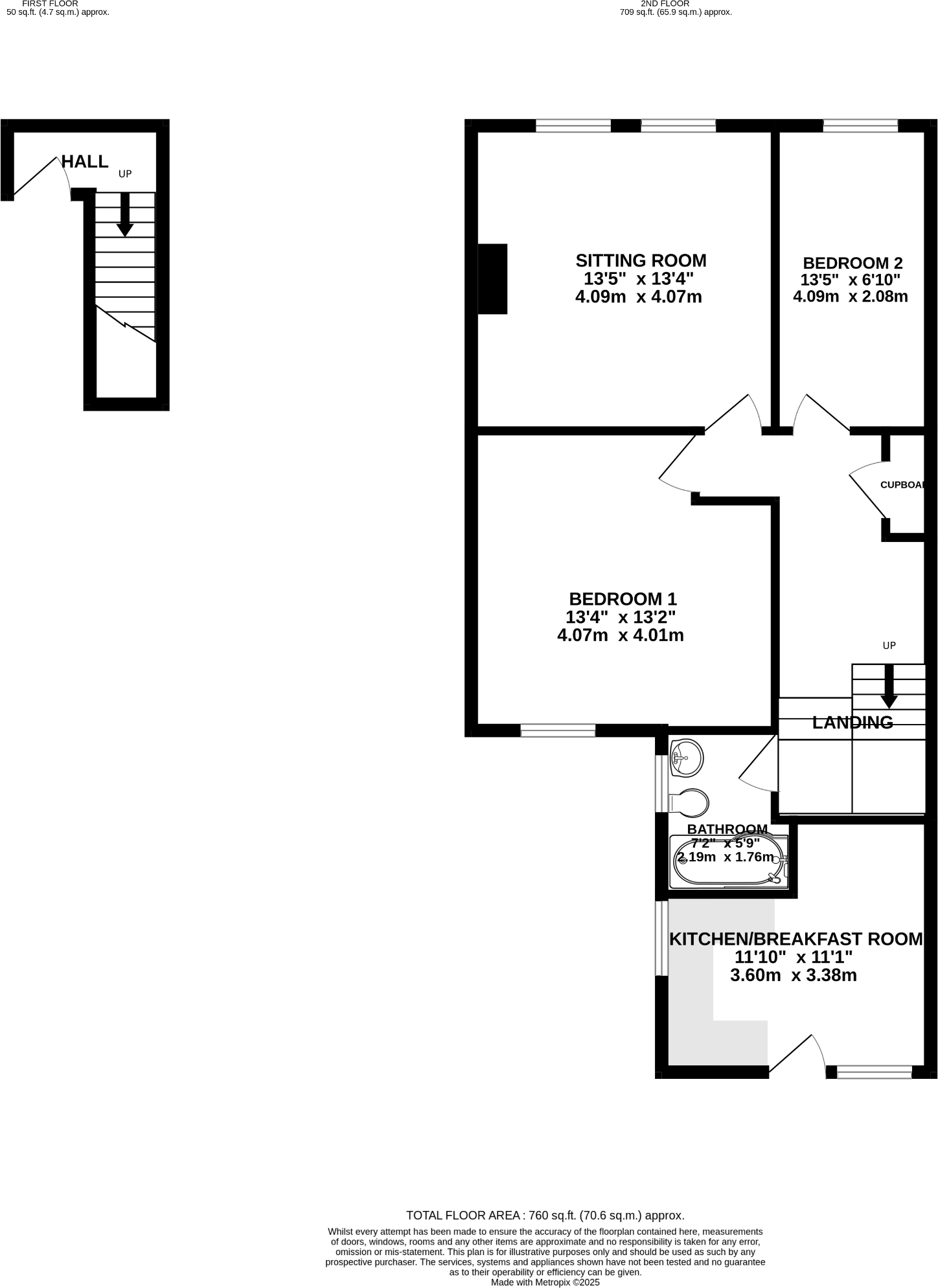
This bright top-floor flat sits a short walk from Exmouth seafront, marina and the town centre, offering convenient coastal living for first-time buyers or buy-to-let investors. The accommodation includes two double bedrooms, a spacious sitting room with large windows and a well-equipped kitchen/breakfast room. The building is a period Victorian terrace, with characterful external bay windows.
Practical strengths include a long lease (977 years), a 1/3 share of the freehold, resident off-street parking, and no onward chain. Running costs are modest: buildings insurance is currently split across the three flats and there is no standing service charge. A large loft offers storage and possible conversion potential (subject to planning and necessary works).
Buyers should note material drawbacks plainly: the property lies in a high flood-risk zone and the local crime rate is above average. The building’s solid brick walls are presumed uninsulated and there is no private rear garden, so coastal exposure and potential heating costs should be considered. Any loft conversion or major changes will require planning and party-wall considerations with the other flats.
Overall this well-presented flat suits someone seeking a convenient seaside base or a rental purchase with long lease security and low shared running costs. Factor in flood-risk mitigation and potential insulation or refurbishment works when assessing long-term running costs and insurance premiums.
2 bedroom flat for sale in Morton Road, Exmouth, EX8 1BA, EX8 — £210,000 • 2 bed • 2 bath • 529 ft²
2 bedroom flat for sale in Morton Road, Exmouth, Devon, EX8 — £220,000 • 2 bed • 1 bath • 789 ft²
2 bedroom flat for sale in Maer Lane, Exmouth, Devon, EX8 — £190,000 • 2 bed • 1 bath • 541 ft²
2 bedroom flat for sale in St Andrews Road, Exmouth, EX8 — £199,950 • 2 bed • 1 bath • 818 ft²
2 bedroom flat for sale in The Strand, Exmouth Town Centre, EX8 — £189,950 • 2 bed • 1 bath • 732 ft²
3 bedroom flat for sale in Morton Road, Exmouth, EX8 — £170,000 • 3 bed • 1 bath • 678 ft²


























