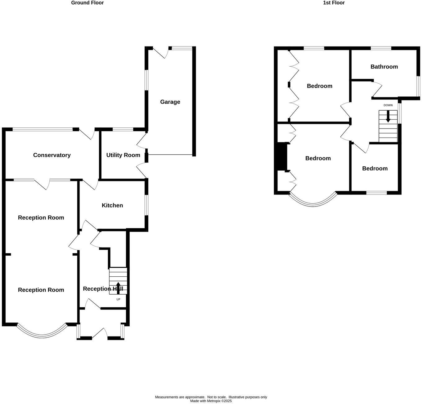
- Three generous bedrooms suitable for family living
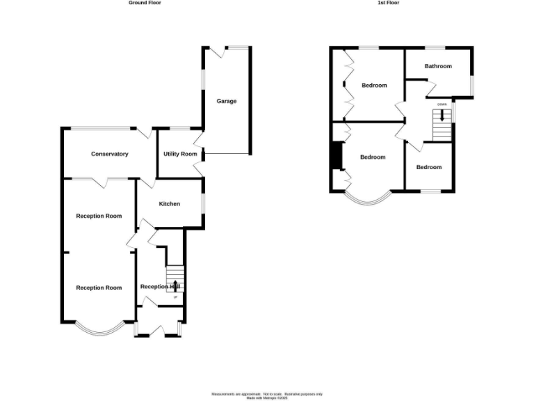
- Through-lounge leading to conservatory and garden views
- Large driveway providing ample off-street parking
- Attached garage plus separate utility room
- Chain free — faster, less complex sale process
- Single family bathroom only; may need an extra WC
- Solid brick (1930s) with assumed no wall insulation
- Tenure not specified; purchaser should verify details
Set on a generous plot in sought-after Goldthorn Park, this 1930s semi delivers roomy family living with practical parking and storage. The ground floor features a through-lounge that flows into a bright conservatory, a fitted kitchen and separate utility — useful for busy households. Upstairs are three generous bedrooms and a single family bathroom.
Practical strengths include a large driveway with ample parking, an attached garage, mains gas heating with boiler and radiators, and double glazing fitted since 2002. The property is offered chain free, making it suitable for buyers who want a straightforward move.
Buyers should note the house is of solid brick construction likely without cavity wall insulation (assumed) and was built in the 1930–49 period, so some thermal upgrades and modernisation may be needed to improve energy efficiency and finish. Tenure details are not provided and should be confirmed. The single bathroom may also prompt layout changes for larger families.
For families seeking proximity to well-rated local schools and good transport links within a major conurbation, this home combines space, parking and a large rear garden with clear potential to personalise and improve value over time.







































































































