Spacious single‑level riverside home on a private 1.5‑acre plot for discerning buyers.
River Tay frontage — approximately 50m of direct riverbank access
Extensive private grounds — about 1.5 acres, broad lawns and mature trees
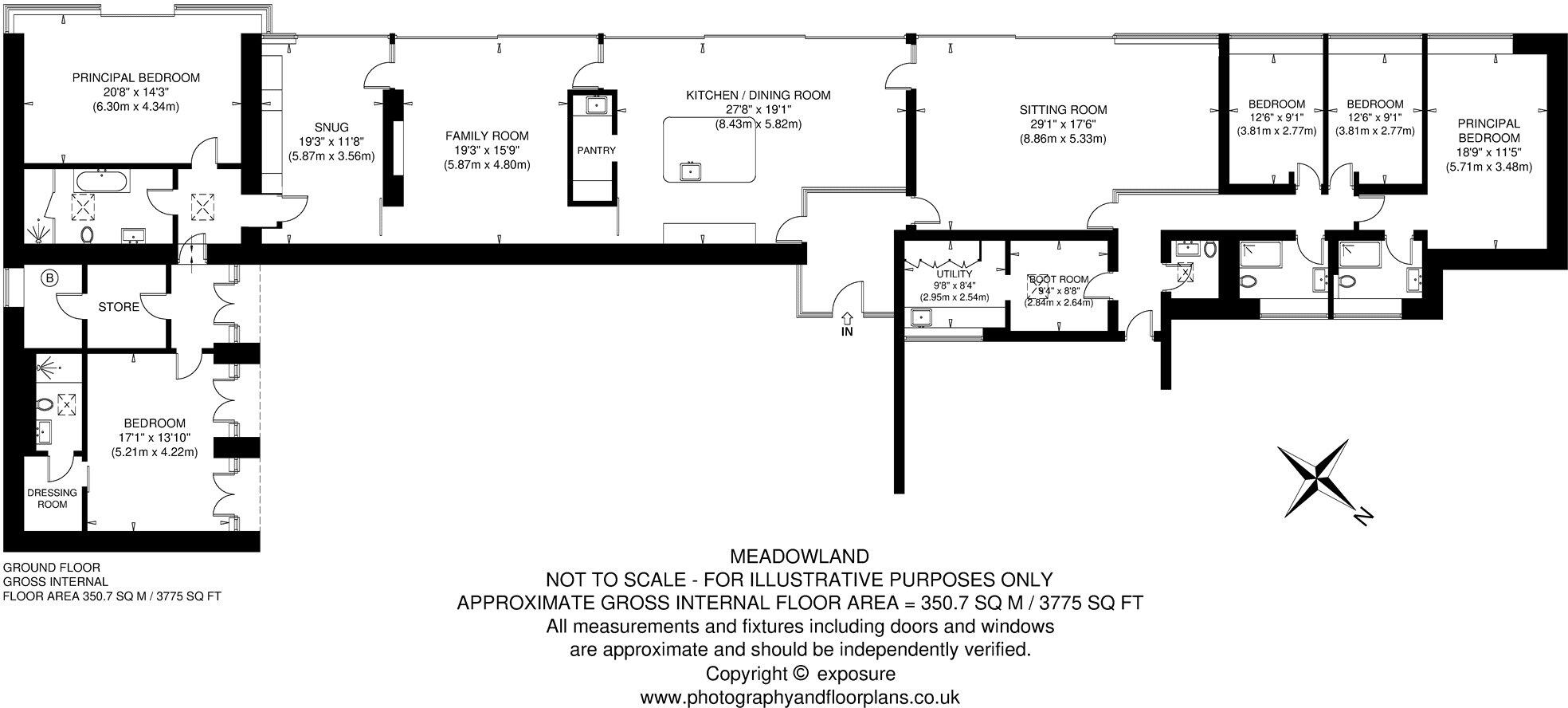
Substantial single‑storey plan — 5 beds, 4 baths, approx 3,775 sq ft footprint
C‑Listed status — restrictions on alterations and potential consent complexities
Large terrace and floor‑to‑ceiling glazing — exceptional indoor/outdoor connectivity
Off‑street parking, electric entrance gates, car port and detached shed
EPC C and Council Tax Band G — expect higher running and tax costs
Local area recorded as very deprived — may affect services and resale comps
A rare single‑storey, contemporary riverside pavilion occupying a substantial private plot along approximately 50m of the River Tay. The house offers generous, light‑filled spaces with floor‑to‑ceiling glazing, wide terraces and direct indoor–outdoor connections that suit family living and waterside entertaining. The footprint spreads laterally across a large site, delivering room sizes and layout flexibility uncommon at this price band.
Accommodation includes five bedrooms and four bathrooms across a largely single‑level plan, principal and two further en‑suite doubles, plus multiple reception rooms, an open‑plan kitchen/dining area, utility and plant rooms. The property is presented as a high‑spec contemporary home with a minimalist aesthetic, extensive landscaped lawns and mature tree screening that provide privacy and an estate‑like setting.
Important legal and practical considerations are clear: the house is C‑listed, which protects architectural features and will restrict alterations and may complicate refurbishment or extension plans. The estate sits in an area recorded as very deprived, which may affect local services and resale comparables. EPC rating is C and the property falls within Council Tax Band G.
This is a premium waterfront asset for buyers who prize location, scale and architectural distinction. The large plot and single‑storey layout present opportunities for sensitive internal re‑planning or landscaping, but any changes will require listed‑building consents and careful liaison with conservation authorities. Suited to purchasers seeking an impressive riverside residence with significant privacy and strong visual appeal, who are prepared to manage the practicalities of a listed property.
5 bedroom detached house for sale in Cargill, Perth, Perth and Kinross, PH2 — £2,200,000 • 5 bed • 5 bath • 5412 ft²
Country house for sale in Cargill, Perthshire, PH1 — £695,000 • 1 bed • 1 bath
5 bedroom detached house for sale in Tayur House, Waterside, Invergowrie, By Dundee, DD2 — £835,000 • 5 bed • 4 bath • 3884 ft²
5 bedroom detached house for sale in 38A, Strathern Road, Broughty Ferry, DD5 1PN, DD5 — £425,000 • 5 bed • 2 bath • 1808 ft²
6 bedroom detached house for sale in Longforgan, DD2 — £850,000 • 6 bed • 6 bath • 4672 ft²
3 bedroom detached house for sale in Flass Road, Wormit, DD6 — £249,000 • 3 bed • 1 bath • 990 ft²






































































































































































