Well-located with easy commuting and good schools close by.
Modern three-bedroom semi-detached home, well presented throughout
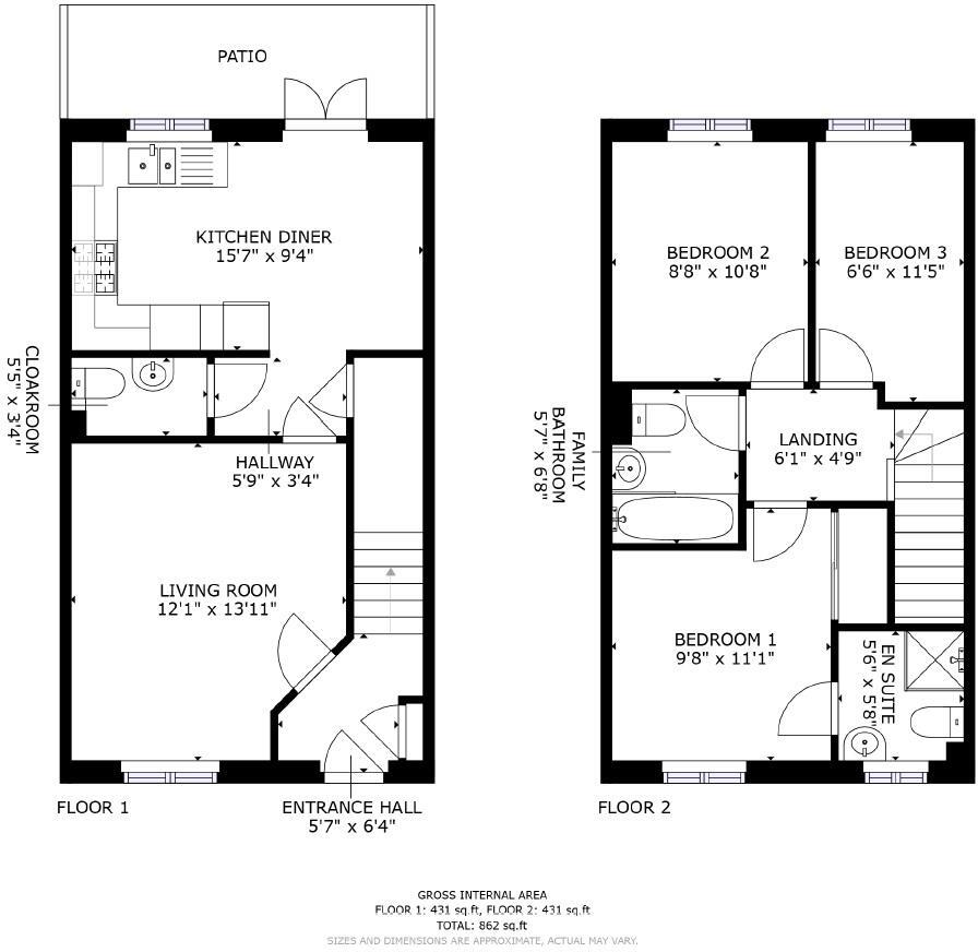
A well-presented modern three-bedroom semi on a popular Stamford development, offering low-maintenance living and strong commuter links. The layout includes a front living room, an open-plan kitchen/diner, downstairs cloakroom and three upstairs bedrooms — the principal with an en suite — arranged efficiently across two floors. Practical features include off-street parking for two to three vehicles, a fully enclosed rear garden and a B-rated EPC.
Internally the rooms are modest but useable, suited to a first-time buyer or investor seeking straightforward rental appeal; the property sits within easy walking distance of town centre amenities and several good schools. Heating is gas-fired via boiler and radiators and broadband and mobile signal are both strong.
Points to note: the plot and internal footprint are modest — typical of contemporary 3-bed semis — so storage and entertaining space are limited compared with detached homes. There is an annual service charge of £165.35. Buyers should review the full material information disclosures before offer.
3 bedroom terraced house for sale in Jackson Way, Stamford, PE9 — £315,000 • 3 bed • 2 bath • 1109 ft²
3 bedroom semi-detached house for sale in Gainsborough Road, Stamford, PE9 — £230,000 • 3 bed • 1 bath • 858 ft²
3 bedroom terraced house for sale in Evans Court, Stamford, PE9 — £300,000 • 3 bed • 1 bath • 894 ft²
3 bedroom semi-detached house for sale in Newham Road, Stamford, PE9 — £280,000 • 3 bed • 1 bath • 571 ft²
3 bedroom semi-detached house for sale in Carisbrooke Grove, Stamford, PE9 — £280,000 • 3 bed • 2 bath • 710 ft²
3 bedroom town house for sale in Tippett Road, Stamford, PE9 — £400,000 • 3 bed • 2 bath • 813 ft²






























































