Chain-free three-bedroom terrace near Grimsby town centre, ideal starter home or investor buy.
Three good-sized bedrooms suitable for families or lettings
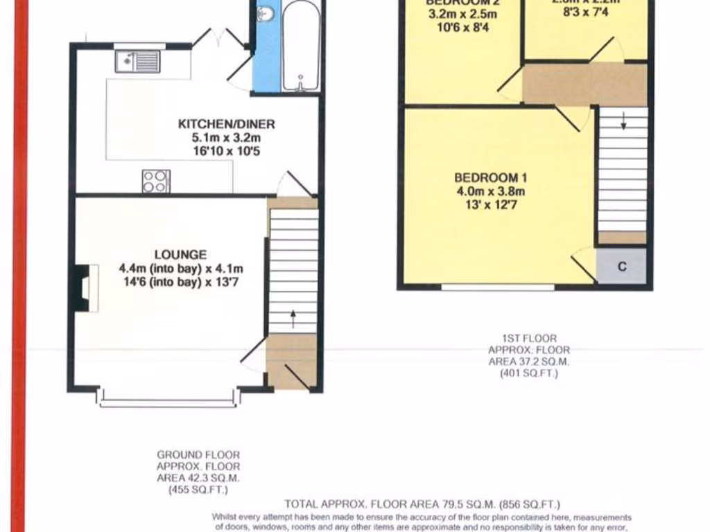
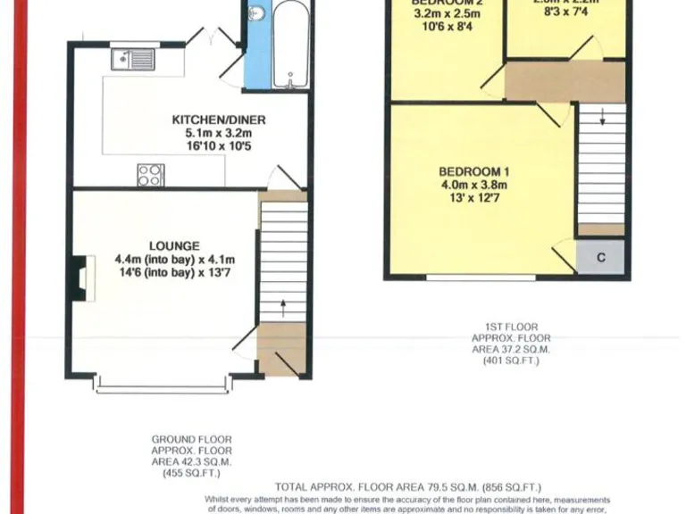
A compact three-bedroom mid-terrace offered chain-free, close to Grimsby town centre. The house features a spacious front lounge, a modern fitted kitchen-diner and a contemporary ground-floor bathroom — ready to move into for buyers who want immediate occupancy or a quick let.
Practical benefits include freehold tenure, double glazing (install date unknown), filled cavity walls and mains gas central heating via boiler and radiators. Small front and rear gardens are low-maintenance, and excellent mobile signal with fast broadband make the home suitable for remote working or letting.
Notable negatives are factual and important. The overall property footprint is small (approximately 525 sq ft) with compact room sizes; the area records high crime levels and is classified as very deprived locally. The property would benefit from cosmetic updating in places and possible improvement to the entrance/porch. Buyers should note the vendor requests buyers purchase the legal pack searches, charged at £360 inc VAT on completion.
This house will appeal to first-time buyers seeking an affordable, city-centre starter home and to buy-to-let investors looking for a straightforward, low-maintenance terrace. Viewings are recommended to assess room proportions and scope for cosmetic improvement in person.
3 bedroom terraced house for sale in Boulevard Avenue, Grimsby, DN31 — £89,950 • 3 bed • 1 bath • 826 ft²
3 bedroom terraced house for sale in Fairmont Road, Grimsby , DN32 — £97,500 • 3 bed • 1 bath • 739 ft²
3 bedroom end of terrace house for sale in James Street, Grimsby, N E Lincs, DN31 — £87,500 • 3 bed • 1 bath • 773 ft²
3 bedroom terraced house for sale in Bowers Avenue, Grimsby, Lincolnshire, DN31 — £85,000 • 3 bed • 1 bath • 765 ft²
3 bedroom terraced house for sale in Convamore Road, Grimsby, North East Lincs, DN32 — £79,950 • 3 bed • 1 bath • 828 ft²
3 bedroom terraced house for sale in Littlefield Lane, Grimsby, DN34 — £105,000 • 3 bed • 1 bath • 561 ft²






























































