Characterful 3-bed Victorian terrace with conservatory, small garden and no onward chain, ideal for families or updates.
Mid-terrace Victorian bay-fronted property
Three bedrooms, one reception, conservatory
Small overall size — approx. 771 sq ft
Small rear yard, low-maintenance outdoor space
Solid brick walls; likely no cavity insulation
Double glazing fitted before 2002 (may need upgrading)
Single family bathroom; scope to modernise
Freehold, chain free, good transport links
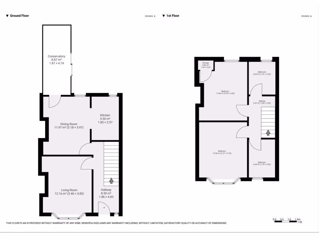
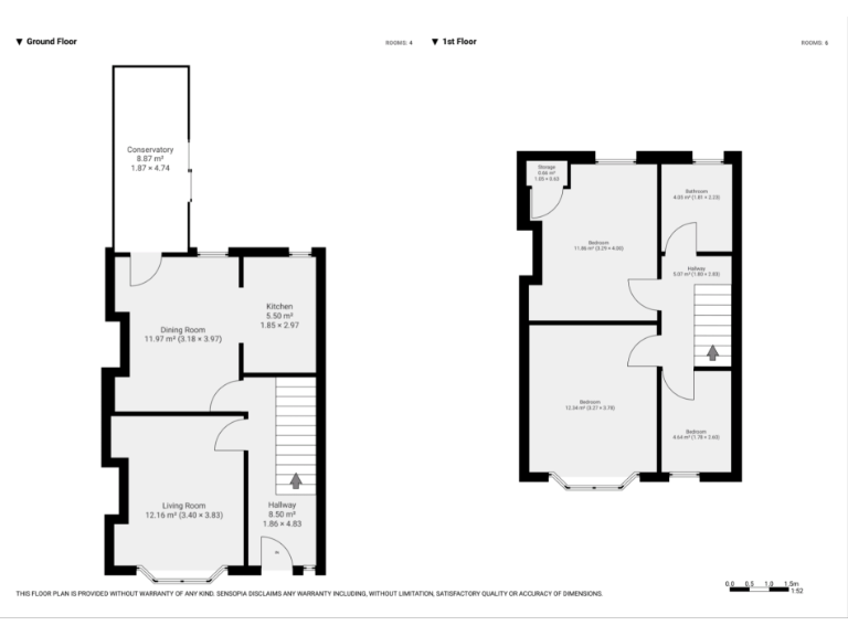
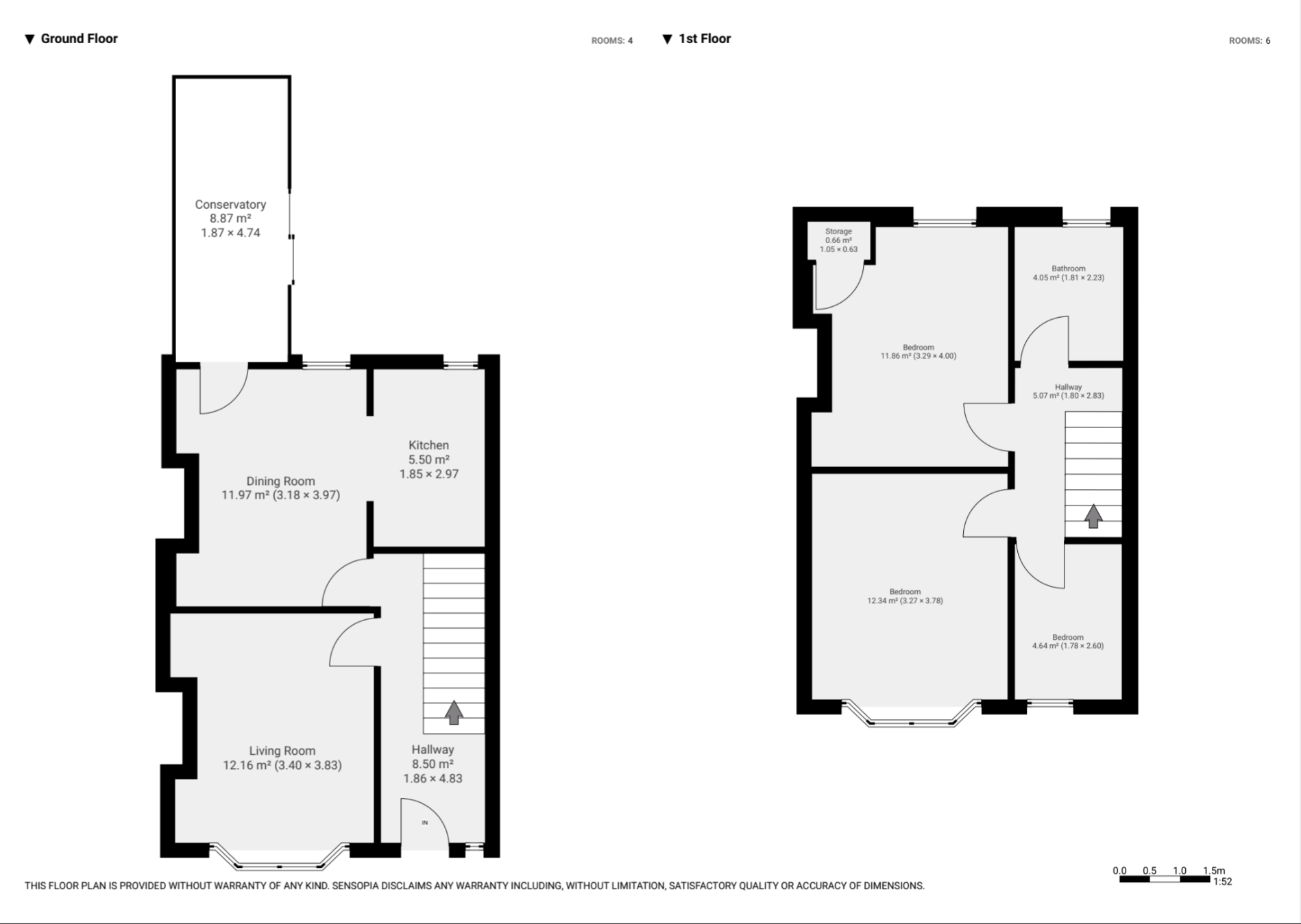
Set on a quiet residential street in L15, this mid-terrace Victorian house offers three bedrooms, a separate reception room and a conservatory leading to a small rear yard. The property retains period bay windows and high ceilings that give genuine character and natural light throughout the principal rooms.
The layout suits families or first-time buyers looking for space to grow, with a kitchen/diner and a versatile conservatory as a second reception area. Nearby schools (several rated Good and top 10% locally), public transport and local amenities make the location particularly convenient for everyday life and commuting.
Practical considerations: the house is a small overall size (approx. 771 sq ft) on a small plot, with solid brick walls likely without cavity insulation and double glazing installed before 2002. There is a single family bathroom and heating via mains gas boiler and radiators. These factors mean there is scope — and likely cost — to modernise (insulation, window upgrades, and aesthetic improvements) to improve energy efficiency and comfort.
Positive points include low local crime, fast broadband and excellent mobile signal, freehold tenure and no onward chain for a quicker sale. The property suits buyers who want character with potential: those prepared to update and personalise will gain value and comfort; buy-to-let investors may also find rental demand in this established neighbourhood.
3 bedroom terraced house for sale in Ancaster Road, Liverpool, Merseyside, L17 — £280,000 • 3 bed • 1 bath • 692 ft²
3 bedroom terraced house for sale in Avondale Road, Liverpool, Merseyside, L15 — £230,000 • 3 bed • 1 bath • 877 ft²
3 bedroom terraced house for sale in Bowden Road, Liverpool, Merseyside, L19 — £240,000 • 3 bed • 1 bath • 864 ft²
3 bedroom end of terrace house for sale in Alwyn Street, Aigburth, Liverpool, Merseyside, L17 — £250,000 • 3 bed • 1 bath • 1166 ft²
3 bedroom terraced house for sale in Gredington Street, Liverpool, Merseyside, L8 — £200,000 • 3 bed • 2 bath • 933 ft²
3 bedroom semi-detached house for sale in Wordsworth Street, Liverpool, Merseyside, L8 — £180,000 • 3 bed • 1 bath • 1083 ft²


































































































