Well-sized ground-floor apartment near train links and shops.
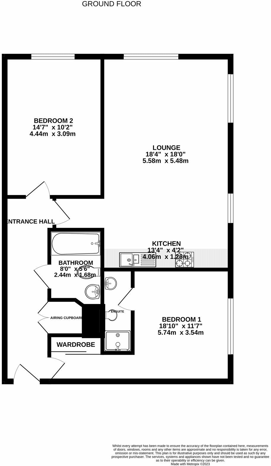
Two double bedrooms; main bedroom with en suite and built-in wardrobes
Bright ground-floor two-bedroom apartment in the heart of Farnborough, offering a larger-than-average layout for this development. The open-plan kitchen/lounge creates a practical social space while the main bedroom benefits from built-in wardrobes and an en suite, giving comfortable everyday living for a first-time buyer. Communal gardens and underground/off-street parking add convenience in this town-centre location.
Commuters will appreciate Farnborough train station and local shops within easy walking distance; London Waterloo is reachable in under 40 minutes. The property has fitted appliances and modern finishes throughout, and an estimated rental value of around £1,400pcm for investors or those considering letting.
Important practical points are stated plainly: the property is leasehold with about 109 years remaining, an annual service charge of approximately £1,900, and electric room heating rather than gas central heating (likely to affect running costs). EPC C (69) and double glazing are positives, but buyers should confirm ground rent and service charge review dates with their solicitor before exchange.
2 bedroom flat for sale in Clockhouse Road, Farnborough, Hampshire, GU14 — £320,000 • 2 bed • 2 bath • 599 ft²
2 bedroom flat for sale in Pond Road, Farnborough, Hampshire, GU14 — £250,000 • 2 bed • 1 bath • 705 ft²
2 bedroom apartment for sale in Kestrel Road, Farnborough, Hampshire, GU14 — £240,000 • 2 bed • 2 bath • 790 ft²
2 bedroom flat for sale in Farnborough Road, Farnborough, Hampshire, GU14 — £270,000 • 2 bed • 1 bath • 683 ft²
2 bedroom apartment for sale in Kestrel Road, Farnborough, Hampshire, GU14 — £240,000 • 2 bed • 2 bath • 629 ft²
1 bedroom flat for sale in Wallis Square, Farnborough, Hampshire, GU14 — £200,000 • 1 bed • 1 bath • 398 ft²










































