**Standout Features:**
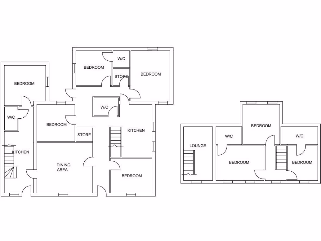
- 7 guest bedrooms with private accommodations.
- Recently renovated, walk-in condition.
- Prime trading location near Inverness City Centre.
- Off-street parking available.
- Awarded a Visit Scotland 4-Star rating.
- Freehold property, chain-free sale.
**Summary:**
Introducing Silverstrands Guest House, a beautiful opportunity for those seeking an established lifestyle business in the heart of Inverness. This recently renovated property offers seven comfortable guest bedrooms and private living quarters, all beautifully appointed with modern features. The charm of a traditional cottage meets contemporary living in a well-maintained environment, making it perfect for both tourists and potential residential use.
Nestled in a prime location just minutes from the city center, Raigmore Hospital, and major transport links, this guest house is ideally situated to attract visitors looking to explore the stunning Highlands. Inverness is a burgeoning hub for tourism with attractions such as the Whisky Trail and Loch Ness right at your door. With ample off-street parking for guests and strong broadband connectivity, this property ensures convenience and comfort for travelers.
Though the local area faces challenges related to deprivation, the business potential for this guest house remains strong in the thriving tourism market. Whether you desire to expand upon its rental capabilities or own a spacious family home, Silverstrands offers flexibility and huge potential. Don't miss the chance to secure this exclusive property, poised for continued success and growth in the heart of the Scottish Highlands.
7 bedroom guest house for sale in Harrowden Road, Inverness, Highland, IV3 — £550,000 • 7 bed • 7 bath • 2990 ft²
Commercial property for sale in Westbourne Guest House, 50 Huntly Street, Inverness, IV3 5HS, IV3 — £700,000 • 12 bed • 13 bath
Guest house for sale in Bosta Bed and Breakfast , Highland, IV3 — £425,000 • 1 bed • 1 bath
8 bedroom guest house for sale in Fairfield Road, Inverness, Highland, IV3 — £675,000 • 8 bed • 8 bath • 3550 ft²
Guest house for sale in Avalon Guest House , Highland, IV3 — £675,000 • 1 bed • 1 bath • 574 ft²
House for sale in Avalon Guest House , Highland, IV3 — £675,000 • 1 bed • 1 bath • 1516 ft²














































































