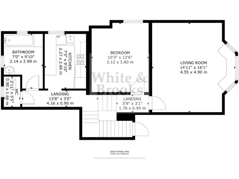
**Standout Features:**
- Spacious bay fronted living room
- One double bedroom
- Well-presented first-floor apartment
- Residents parking included
- Close to local shops and the seafront
- New boiler recently installed
- Communal gardens available
**Concerns:**
- Service charge of £1,700 per year
- Above-average crime rate in the area
- Solid brick construction with assumed no insulation
This charming first-floor flat in Bognor Regis presents an excellent opportunity for first-time buyers or investors seeking a low-maintenance residence with great local amenities. The spacious bay fronted living room allows for an abundance of natural light, creating a warm and inviting atmosphere. Alongside a cozy double bedroom, the property boasts a well-designed kitchen, a bathroom, and a separate WC. Newly installed, the energy-efficient boiler ensures comfort year-round.
With residents parking and lovely communal gardens to enjoy, this apartment's location offers easy access to local cafes, shops, and the beautiful seafront. Outstanding schools, including St Philip Howard Catholic School, contribute to the area's family-friendly appeal. Although the community faces higher crime rates and the service charge is notably high, the low price of £165,000 and added conveniences make this property a rare find. Don't miss your chance to secure a comfortable home in a vibrant coastal town!
1 bedroom apartment for sale in Richmond Avenue, Canberra Court Richmond Avenue, PO21 — £160,000 • 1 bed • 1 bath • 440 ft²
1 bedroom flat for sale in West Street, Bognor Regis, West Sussex, PO21 — £125,000 • 1 bed • 1 bath • 458 ft²
1 bedroom apartment for sale in Havelock Road, Bognor Regis, PO21 — £170,000 • 1 bed • 1 bath • 543 ft²
2 bedroom apartment for sale in Stocker Road, Northmoor Court 2-4 Stocker Road, PO21 — £210,000 • 2 bed • 1 bath • 726 ft²
1 bedroom flat for sale in Victoria Drive, Bognor Regis, West Sussex, PO21 — £125,000 • 1 bed • 1 bath • 575 ft²
2 bedroom flat for sale in Kelmscott Way, Bognor Regis, PO21 — £190,000 • 2 bed • 1 bath • 719 ft²


















































