Large rural plot with conversion potential and classic cottage character.
Stone-built 3/4 bedroom house with leaded hardwood windows
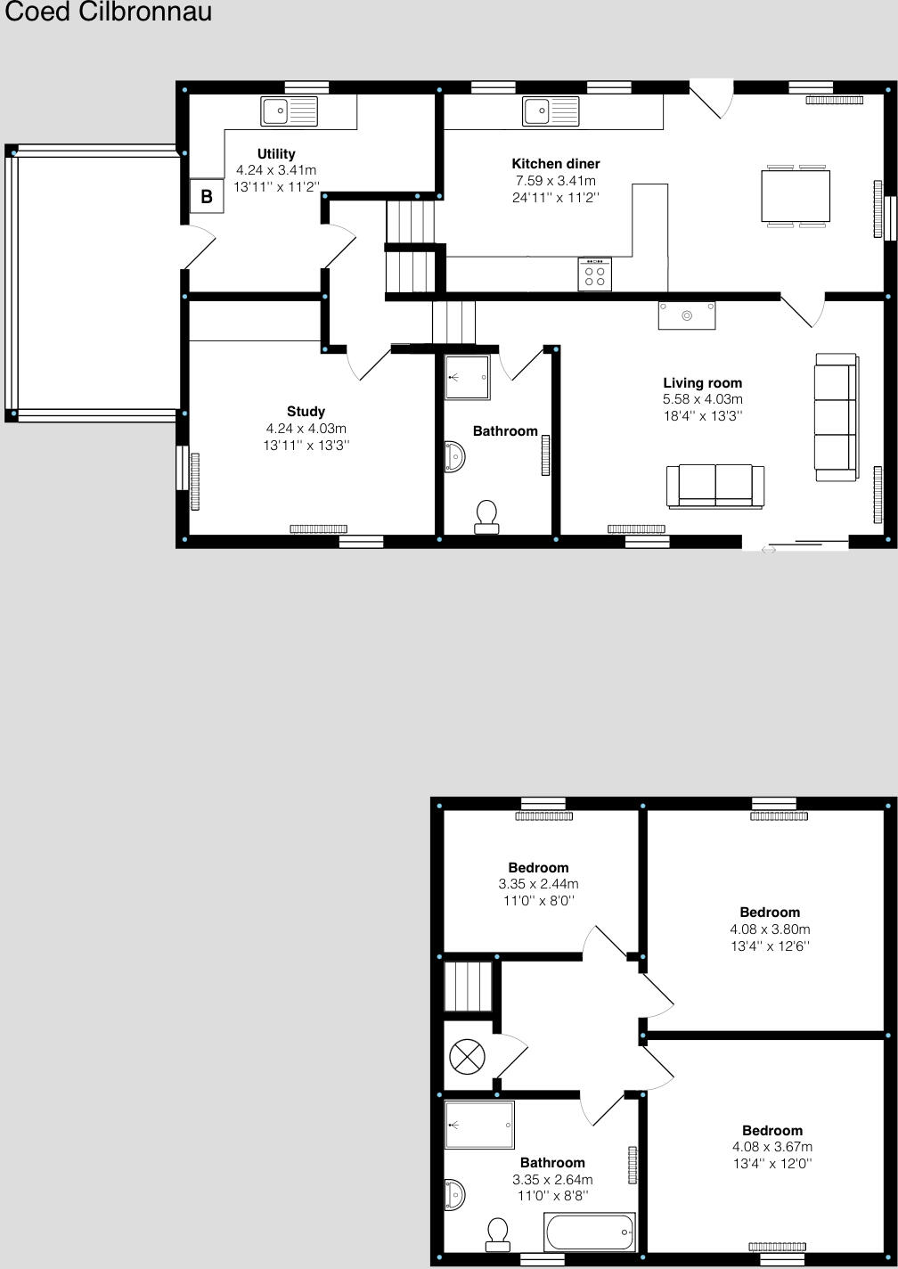
Set in the peaceful hamlet of Llangoedmor, Coed Cilbronnau is a stone-built character house with extensive historic walled gardens and mature planting. The house offers flexible family accommodation across multi-level floors: a large kitchen/diner, sitting room with inglenook and wood burner, study (possible 4th bedroom), two sunrooms and utility. Original features include leaded hardwood windows, pointed stone walls and exposed beams that give genuine period character.
The plot is a major asset — a massive, formally planted walled garden with fruit trees, grape vines, greenhouse, outbuildings and woodland beyond. Off-street parking and a two-storey cart house provide useful storage and clear scope for conversion to additional accommodation (subject to planning). The property sits about a mile from Cardigan, so day-to-day amenities and transport links are accessible while retaining a rural, secluded feel.
Buyers should note a few material issues: a small patch of Japanese knotweed is present in the woodland but is under a fully insured management plan; the coach house roof contains chrysotile (asbestos) and will need specialist consideration; some roof wear on the main house is reported and may require maintenance. Services include mains electricity and water, private drainage and an oil-fired boiler — factors to weigh for running costs and any future upgrades. Tenure is not specified and prospective purchasers should confirm this and validate appliance/service details before purchase.
For a purchaser seeking character, garden space and conversion potential in a tranquil setting, Coed Cilbronnau offers a rare combination of historic charm and scope to enhance value. Its size, setting and original features make it particularly suited to a family or buyer wanting a rural renovation project with substantial outdoor amenity.
2 bedroom semi-detached house for sale in Abercych, Boncath, SA37 — £275,000 • 2 bed • 1 bath • 872 ft²
4 bedroom detached house for sale in Cilgerran, Cardigan, SA43 — £335,000 • 4 bed • 3 bath • 1249 ft²
4 bedroom detached house for sale in Llechryd, Cardigan, SA43 — £400,000 • 4 bed • 4 bath • 2558 ft²
4 bedroom detached house for sale in Llandygwydd, Cardigan, Ceredigion, SA43 — £585,000 • 4 bed • 3 bath
5 bedroom smallholding for sale in Felin Ban Farm Estate, Cardigan, SA43 — £650,000 • 5 bed • 2 bath
4 bedroom smallholding for sale in Rhydlewis, Llandysul, SA44 — £570,000 • 4 bed • 2 bath • 4215 ft²










































































































































































































