Large 120ft garden, garage and chain-free purchase—ideal for families or renovators.
Chalet-style detached home with 2–3 bedrooms and flexible reception rooms
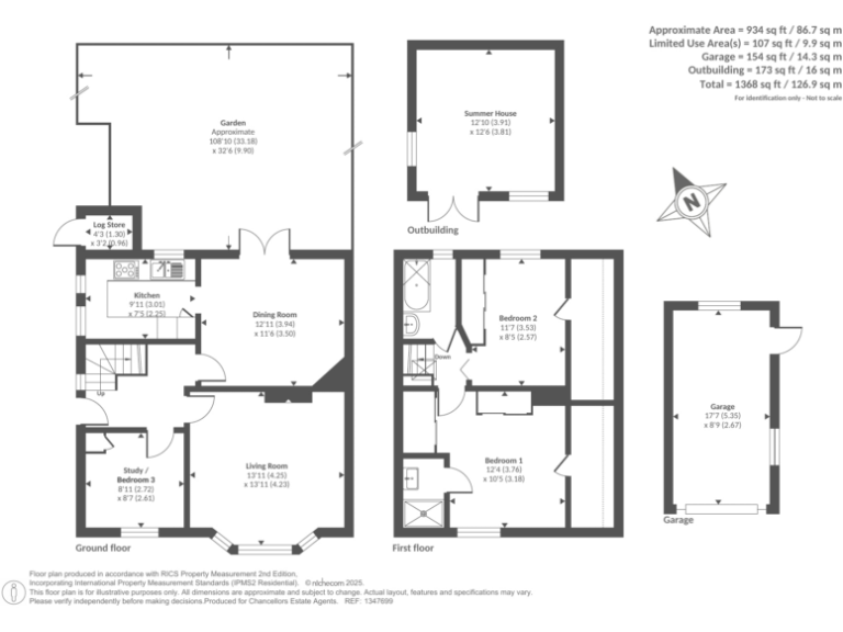
A chalet-style detached home in South Reading offering flexible living across two/three bedrooms and two/three reception rooms. The property benefits from a modern fitted kitchen with appliances, an ensuite shower to the principal bedroom and a family bathroom — ready to occupy chain free.
The rear garden extends to approximately 120ft and includes a summer house, providing exceptional outdoor space for families or gardeners. Driveway parking and a garage add practical storage and off-street convenience. The house totals about 1,368 sq ft and sits on a large plot in an inner-city, culturally mixed neighbourhood.
Buyers should note the building dates from the early 20th century with solid brick walls (likely no cavity insulation) and double glazing of unknown age. The living room description mentions potential mold surveillance; a buyer survey is recommended to check for damp, insulation and any necessary remedial works. Local crime levels are above average and the wider area shows signs of deprivation, balanced by excellent mobile signal, fast broadband and nearby schools and amenities.
This home suits families seeking generous garden space and flexible accommodation, or buyers prepared to invest in upgrading insulation and addressing any moisture issues to unlock full long-term value. Being freehold and chain free makes for a straightforward purchase route.
2 bedroom bungalow for sale in Firs Road, Tilehurst, Reading, Berkshire, RG31 — £550,000 • 2 bed • 1 bath • 1340 ft²
3 bedroom detached house for sale in Oban Gardens, Woodley, Reading, Berkshire, RG5 — £500,000 • 3 bed • 1 bath • 1188 ft²
3 bedroom detached house for sale in Exwick Square, RG2 8NB, RG2 — £365,000 • 3 bed • 1 bath • 998 ft²
2 bedroom end of terrace house for sale in South Reading, Berkshire, RG2 — £375,000 • 2 bed • 1 bath • 1007 ft²
3 bedroom semi-detached house for sale in Winton Road, Reading, Berkshire, RG2 8HH, RG2 — £430,000 • 3 bed • 1 bath • 921 ft²
4 bedroom detached house for sale in Boundary Close, Tilehurst, Reading, RG31 — £575,000 • 4 bed • 2 bath • 1548 ft²






























































































