**Standout Features:**
- Two spacious bedrooms
- Generous living/reception area
- Separate office room for remote work or study
- Rear yard for outdoor relaxation
- Located in a sought-after area of Birkenhead
- EPC Rating: E
- Freehold tenure with minimal council tax
**Notable Concerns:**
- Average-sized rooms with compact layout
- Above-average crime rate in the area
- Potential structural upgrades needed (assumed insulation absent)
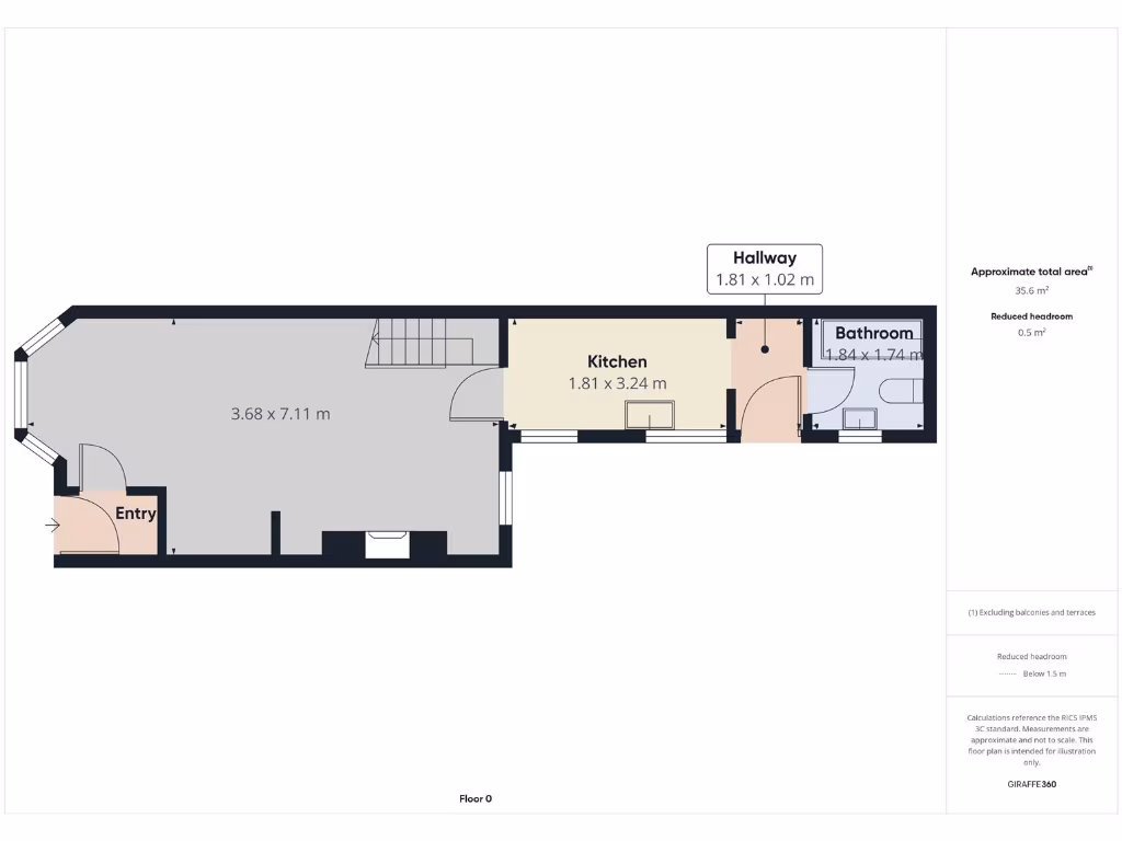
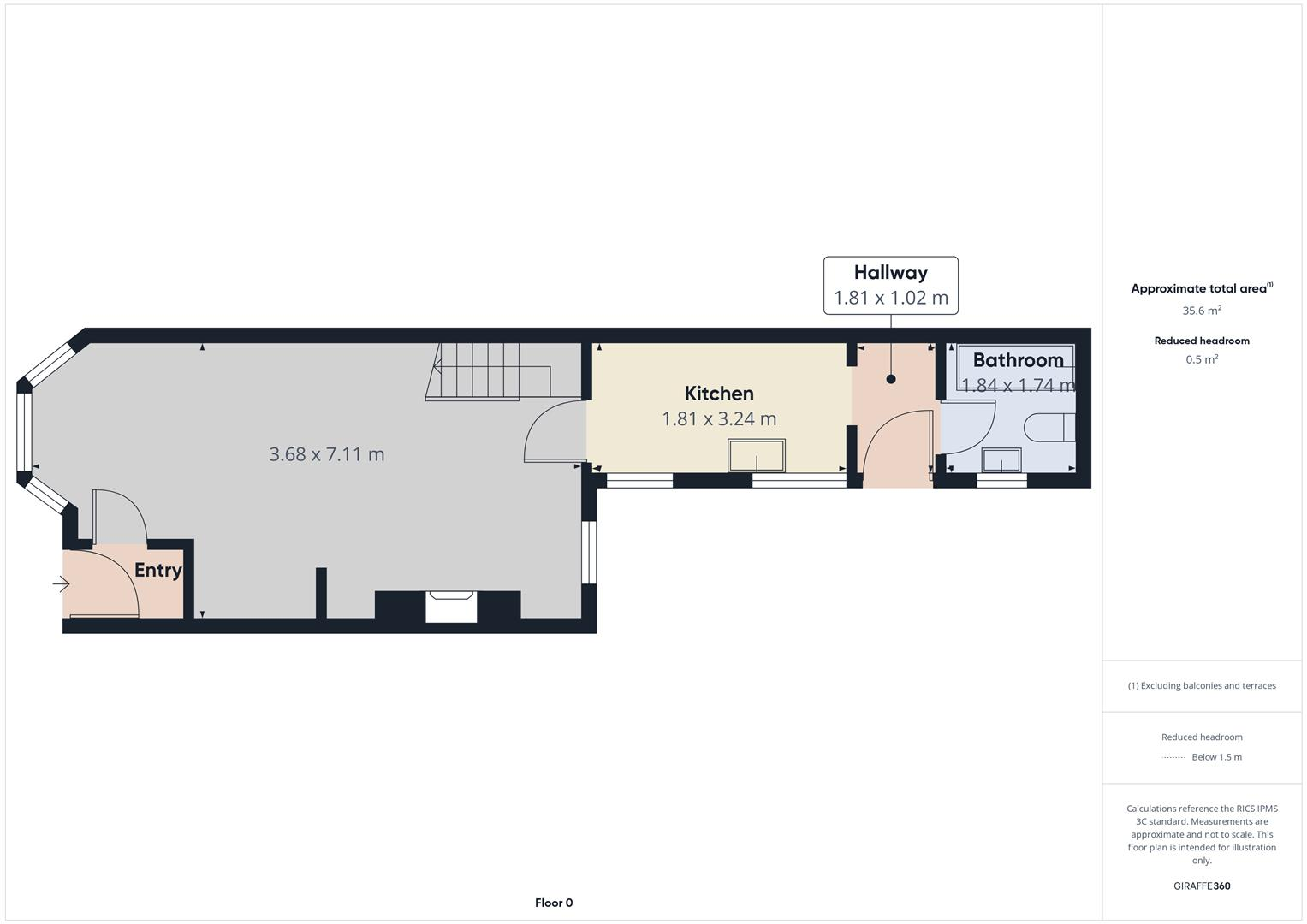
This charming two-bedroom mid-terrace property on Woodville Road offers an attractive opportunity for first-time buyers and investors alike. Step into a bright and spacious through room, perfect for entertaining or unwinding after a long day. The well-designed kitchen complements the living space, while the conveniently located bathroom serves both bedrooms. An added office room provides a valuable area for remote work, meeting the demands of modern life.
The rear yard is a delightful feature for outdoor enjoyment, whether you're hosting summer gatherings or savoring quiet moments in the fresh air. While the home's compact size and average room dimensions may not suit everyone, this property effectively maximizes space and comfort. It's situated in a sought-after location with affordable council tax, ensuring it won’t last long on the market. With the right touch, this home holds excellent potential for personalization and value enhancement—don’t miss your chance to view and envision your future here!
2 bedroom terraced house for sale in Elmswood Road, Birkenhead, CH42 — £105,000 • 2 bed • 1 bath
2 bedroom terraced house for sale in Argyle Street South, Birkenhead, Wirral, CH41 — £110,000 • 2 bed • 1 bath • 690 ft²
2 bedroom terraced house for sale in New Hey Road, Woodchurch, Wirral , CH49 — £150,000 • 2 bed • 1 bath • 784 ft²
2 bedroom terraced house for sale in Hinderton Road, Birkenhead, CH41 — £110,000 • 2 bed • 1 bath • 690 ft²
2 bedroom terraced house for sale in Eldon Road, Birkenhead, CH42 — £110,000 • 2 bed • 1 bath • 314 ft²
2 bedroom terraced house for sale in Maybank Road, Birkenhead, CH42 — £75,000 • 2 bed • 1 bath • 840 ft²














































































