New energy-efficient barn with paddock and wide countryside views for family living.
4 double bedrooms, 2 en suites plus dressing room to principal
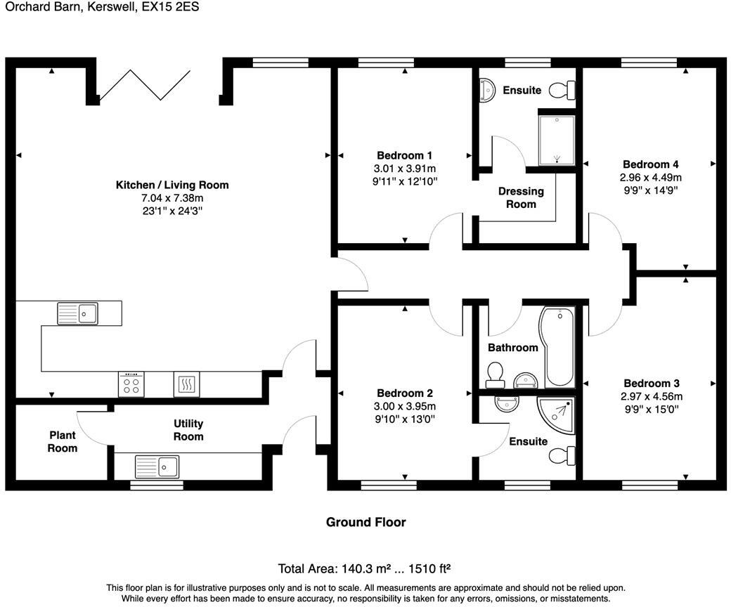
Orchard Barn is a newly completed four-double-bedroom barn conversion set on about 0.3 acres at the edge of Kerswell, with wide panoramic countryside views across the Blackdown Hills. The home is designed for low‑maintenance, energy‑efficient living with timber frame construction, an air‑source heat pump and underfloor heating. The principal suite includes a dressing room and fitted wardrobes; two further bedrooms have en suites and there is a practical utility room off the entrance hall.
Outdoor space is a strong feature: a private west / south‑west facing patio and landscaped garden adjoin the main living area, with an additional paddock beyond. The property benefits from substantial off‑street parking accessed via a shared driveway and sits within a small development of three barn conversions. Freehold tenure and a 10‑year build warranty are in place.
Buyers should note a few material considerations. Water is supplied from a private borehole and foul drainage is to a shared treatment plant — both require ongoing management. Broadband speeds in the area are reported as very slow, which may affect home working. Some visuals supplied with the listing have been staged or enhanced using AI. Council tax band currently TBC.
This home will suit families seeking well‑appointed rural living with good local schooling (Uffculme School catchment) and strong transport links nearby. It will also appeal to buyers wanting a low‑maintenance country property with room for parking, small‑scale equestrian use or hobby gardening, provided they accept the private services and limited broadband provision.
4 bedroom semi-detached house for sale in Kerswell, Cullompton, EX15 — £675,000 • 4 bed • 3 bath • 1540 ft²
4 bedroom semi-detached house for sale in Kerswell, Cullompton, EX15 — £750,000 • 4 bed • 3 bath • 1540 ft²
4 bedroom semi-detached house for sale in Kerswell, Cullompton, EX15 — £475,000 • 4 bed • 2 bath • 1182 ft²
4 bedroom barn conversion for sale in Farringdon Lane, North Petherton, Bridgwater, Somerset, TA6 — £929,950 • 4 bed • 3 bath • 2575 ft²
6 bedroom barn conversion for sale in Buckland St. Mary, Taunton, Somerset, TA20 — £1,295,000 • 6 bed • 5 bath • 2988 ft²
2 bedroom barn conversion for sale in Broadclyst, Exeter, EX5 — £325,000 • 2 bed • 2 bath • 1025 ft²


























































































