**Standout Features:**
- Freehold three-storey commercial unit
- Vacant possession, chain-free sale
- Situated close to the high street with high visibility
- Significant development potential (subject to planning permission)
- Roof terrace
**Summary:**
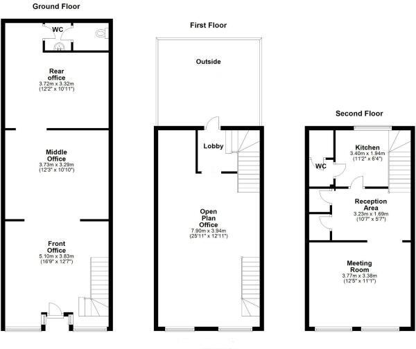
Unlock the potential of this spacious three-storey commercial unit in the bustling heart of Highworth, just a short walk from local amenities. Covering an impressive 1,280 square feet, this property benefits from excellent footfall and visibility, making it an attractive prospect for entrepreneurs and investors alike. The unit is offered with vacant possession and presents a canvas for future innovation, with ample development potential to suit various business needs or transform into a bespoke space (subject to planning permission).
While the property may require some modernization to fully exploit its capabilities, it holds an appealing charm with its Georgian-style façade and contemporary interior elements, promising an inviting environment for patrons. With fast broadband, excellent mobile connectivity, and easy access to a range of shops and services, this location is ideal for thriving business operations. Act quickly to secure this fantastic investment opportunity—properties with such flexibility and potential are rare and likely to attract significant interest!
Commercial property for sale in High Street, Highworth, Wiltshire, SN6 — £189,500 • 1 bed • 1 bath • 2195 ft²
Commercial property for sale in High street, Highworth, SN6 — £150,000 • 1 bed • 1 bath • 802 ft²
3 bedroom terraced house for sale in High Street, Cricklade, Wiltshire, SN6 — £350,000 • 3 bed • 2 bath • 1822 ft²
Commercial property for sale in High Street, Highworth, Swindon, SN6 — £250,000 • 1 bed • 1 bath • 561 ft²
Shop for sale in Commercial Road, Town Centre, Swindon, SN1 — £360,000 • 1 bed • 1 bath • 1599 ft²
3 bedroom end of terrace house for sale in Eastcott Road, Old Town, Swindon, Wiltshire, SN1 — £210,000 • 3 bed • 1 bath • 1007 ft²






























