Contemporary five-bed home with garden, garage and warranties; move-in early 2026.
Five-bedroom detached family home across three floors
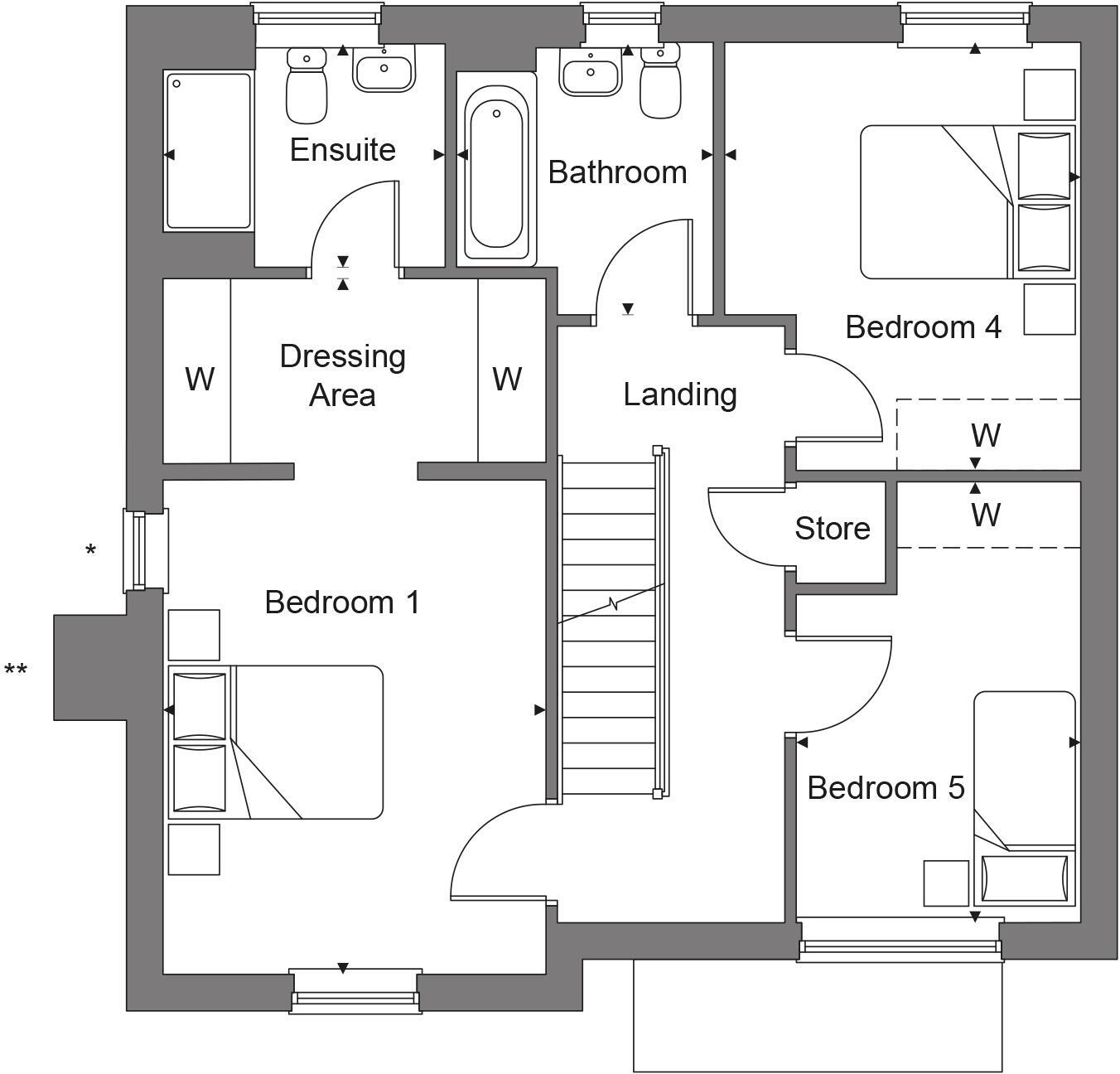
A substantial new-build family home designed across three floors, the Grantham at Shenley Wood provides flexible living for growing households. The ground floor centres on a bright open-plan kitchen-dining-family room with French doors to a private garden, plus a separate living room, study and utility for day-to-day practicality. Bedroom one includes a dressing area with fitted wardrobes and an ensuite for added convenience, while two further doubles and additional bedrooms give space for family and guests.
This home comes with integrated kitchen appliances, a single garage plus two tandem driveway spaces, and a 10-year Premier warranty alongside a 2-year builder warranty for peace of mind. The development sits in a very affluent, low-crime area with several highly rated local schools, making it well suited to families seeking long-term stability in Milton Keynes.
Buyers should note the advertised completion window of January–March 2026, so this is not an immediate move-in. The listing data shows one bathroom overall; prospective purchasers should confirm final bathroom counts and exact specifications before exchange. Council Tax banding is still to be confirmed.
Show homes are available to view, giving a good sense of layout and finishes, but some images and details may be illustrative and subject to change. Overall, the Grantham offers contemporary family living with generous accommodation, built-in guarantees and good local amenities — best for buyers who can wait for the completion date and want a modern, low-maintenance home.
5 bedroom detached house for sale in Shenley Wood,
Milton Keynes,
Buckinghamshire,
MK5 6LA
, MK5 — £990,000 • 5 bed • 1 bath
5 bedroom detached house for sale in Shenley Wood,
Milton Keynes,
Buckinghamshire,
MK5 6LA
, MK5 — £820,000 • 5 bed • 1 bath
4 bedroom detached house for sale in Shenley Wood,
Milton Keynes,
Buckinghamshire,
MK5 6LA
, MK5 — £670,000 • 4 bed • 1 bath
4 bedroom detached house for sale in Shenley Wood,
Milton Keynes,
Buckinghamshire,
MK5 6LA
, MK5 — £600,000 • 4 bed • 1 bath
4 bedroom detached house for sale in Shenley Wood,
Milton Keynes,
Buckinghamshire,
MK5 6LA
, MK5 — £710,000 • 4 bed • 1 bath
4 bedroom detached house for sale in Shenley Wood,
Milton Keynes,
Buckinghamshire,
MK5 6LA
, MK5 — £670,000 • 4 bed • 1 bath






































































