Close to top-rated schools and local shops, ready to move into.
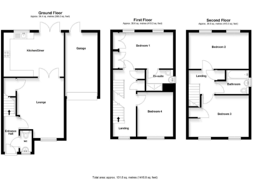
Four double bedrooms across three storeys, flexible family layout
Modern kitchen/diner with French doors to private garden
Bedroom one with fitted wardrobes and en-suite shower room
Attached single garage plus driveway parking for two cars
Approximately 1,416 sq ft of living space, freehold tenure
Small rear plot with low-maintenance patio and lawn
Council tax level is above average — budget accordingly
This well-presented four-bedroom semi-detached home is arranged over three levels and suits a growing family seeking easy access to excellent local schools and everyday amenities. The ground floor offers a bright lounge and a modern kitchen/diner with French doors opening onto a private rear garden — good for day-to-day family living and entertaining.
Bedroom one includes fitted wardrobes and an en-suite, while two further large double bedrooms occupy the top floor. A fourth double room and a handy landing study area provide flexible space for a home office or playroom. The property totals approximately 1,416 sq ft, offering comfortable room sizes throughout.
Outside, the plot is modest but low-maintenance, with a patio and lawn area, an attached single garage and parking for two cars to the front. Built by Croudace Homes to the Laburnum design, the house is freehold, in a low-crime, affluent area and sits within the catchment of the Outstanding Round Diamond Primary School.
Practical points to note: the plot is relatively small and council tax is above average. Overall this is a well-kept family home with flexible living space and good local links — viewing is recommended to appreciate the layout and location.
3 bedroom semi-detached house for sale in Foyle Close, Great Ashby, Stevenage, Hertfordshire, SG1 — £375,000 • 3 bed • 2 bath • 959 ft²
3 bedroom semi-detached house for sale in Neagh Close, Great Ashby, Stevenage, SG1 — £420,000 • 3 bed • 1 bath • 605 ft²
4 bedroom detached house for sale in Mendip Way, Stevenage, Hertfordshire, SG1 — £635,000 • 4 bed • 3 bath • 1887 ft²
3 bedroom semi-detached house for sale in Swale Close, Stevenage, Hertfordshire, SG1 — £400,000 • 3 bed • 2 bath • 1127 ft²
3 bedroom town house for sale in Mendip Way, Stevenage, Hertfordshire, SG1 — £375,000 • 3 bed • 1 bath • 1185 ft²
5 bedroom detached house for sale in Haybluff Drive, Stevenage, SG1 — £615,000 • 5 bed • 3 bath • 2087 ft²














































































