Spacious period living with a sunny south garden near parks and transport.
Three bedrooms and two bathrooms across three storeys
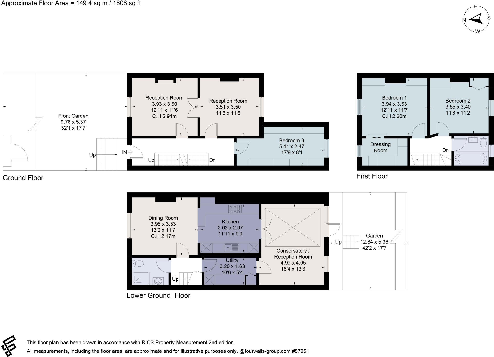
This substantial Victorian mid-terrace offers generous, flexible living across three storeys with 1,608 sq ft of space — ideal for families seeking period character close to green space and good transport. High ceilings, original sash windows and a working fireplace give the principal rooms authentic charm, while the conservatory and south-facing garden provide sunny, private outdoor space and clear views towards All Saints Church.
The lower ground floor opens to a large kitchen-dining area, utility and direct garden access — practical for family life and entertaining. Three bedrooms and two bathrooms (including a top-floor family bathroom and a ground-floor shower room) give comfortable sleeping arrangements; the principal bedroom benefits from a dressing room that could revert to a fourth bedroom if needed.
Buyers should note this is a solid-brick Victorian build likely without cavity wall insulation and the property currently holds an EPC rating of D. Heating is mains-gas boiler and radiators; there is scope to improve energy efficiency and reduce running costs. Council tax is above average and the plot is modest in size, which may matter to those seeking larger gardens.
Located off Albion Square, the house sits in an inner-city cosmopolitan pocket with fast broadband, excellent mobile signal and close access to Haggerston and Dalston Junction. Outstanding local primary schools, nearby London Fields and Broadway Market make this a strong family location, while the established tech-worker demographic supports good local amenity and transport links.
2 bedroom terraced house for sale in Albion Terrace, London, E8 — £1,675,000 • 2 bed • 2 bath • 1360 ft²
3 bedroom terraced house for sale in Elderfield Road, Lower Clapton, London, E5 — £1,125,000 • 3 bed • 1 bath • 1482 ft²
5 bedroom terraced house for sale in Farleigh Road, London, N16 — £1,350,000 • 5 bed • 2 bath • 2500 ft²
4 bedroom terraced house for sale in Sandringham Road, London, E8 — £1,650,000 • 4 bed • 3 bath • 1945 ft²
4 bedroom semi-detached house for sale in Albion Square, London, E8 — £3,000,000 • 4 bed • 3 bath • 2050 ft²
5 bedroom house for sale in Dunlace Road, London, E5 — £1,900,000 • 5 bed • 4 bath • 2192 ft²






























































































































