Well-appointed retirement home with extensive onsite amenities and rooftop views.
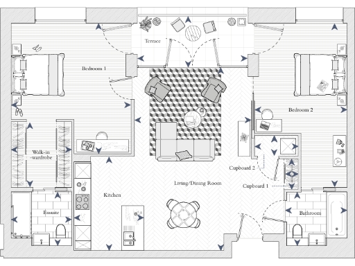
Ground-floor two-bedroom apartment with westerly-facing terrace
One Bayshill Road combines period charm with contemporary retirement living in the heart of Montpellier, Cheltenham. This ground-floor two-bedroom apartment offers a westerly-facing terrace, generous built-in storage and private rooftop gardens with town views, ideal for quiet afternoons or meeting neighbours.
Owners at Pegasus benefit from comprehensive on-site facilities — owners’ lounge, spa, hydrotherapy pool, gym, restaurant and a dedicated Lifehost team seven days a week — plus private secure underground parking and a guest suite for visitors. Pets are welcome and the long lease (992 years remaining) gives reassuring tenure security.
Be aware this is a leasehold retirement property within a Grade II listed building, which may restrict alterations and can complicate some changes. Service charges are high at £13,992pa and ground rent is £400pa; council tax is above average. The development sits in a lively part of town where recorded crime levels are very high, so prospective buyers should satisfy themselves about personal security and insurance costs.
This home will suit downsizers seeking an active, maintenance-light lifestyle with strong on-site support and spa-style amenities, but buyers must factor the substantial service charge and listed-status constraints into their long-term budget and plans.
1 bedroom retirement property for sale in Bayshill Road, Cheltenham, Gloucestershire, GL50 — £350,000 • 1 bed • 1 bath • 980 ft²
2 bedroom retirement property for sale in Apartment 34 One Bayshill Road, Cheltenham, Gloucestershire, GL50 — £625,000 • 2 bed • 1 bath • 997 ft²
2 bedroom apartment for sale in One Bayshill Road, Cheltenham, Gloucestershire, GL50 — £600,000 • 2 bed • 1 bath • 1323 ft²
3 bedroom apartment for sale in One Bayshill Road, Cheltenham, Gloucestershire, GL50 — £795,000 • 3 bed • 2 bath • 1350 ft²
1 bedroom apartment for sale in Bayshill Road, Cheltenham, Gloucestershire, GL50 — £475,000 • 1 bed • 1 bath • 719 ft²
2 bedroom apartment for sale in Pegasus Court, St. Stephens Road, Cheltenham, GL51 — £187,500 • 2 bed • 1 bath • 591 ft²


































