Secure, modern over‑60s apartment with balcony views and extensive communal facilities.
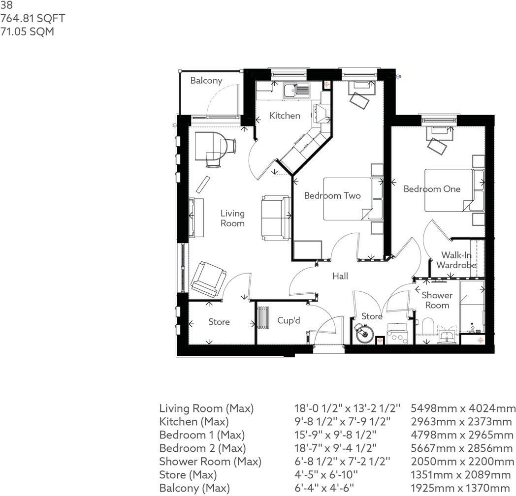
- Two-bedroom second-floor retirement apartment, c.765 sq ft
- Dual-aspect lounge with balcony and Culm valley views
- Modern fitted kitchen, shower room and built-in storage
- 24/7 emergency call, door-camera entry and fire detection
- Communal lounge, landscaped gardens and House Manager on site
- Leasehold: 999 years from 27/01/2023
- Service charge £5,628pa (above average); some utilities excluded
- Council tax band TBC; apartment utilities and contents insurance not included
Light, manageable and built specifically for over-60s, this two-bedroom second-floor apartment on Willand Road offers comfortable retirement living with excellent communal facilities. The open-plan living/dining room is dual aspect, filled with natural light and opens onto a balcony with views across the Culm valley. The modern fitted kitchen, shower room and built-in storage keep day-to-day living straightforward in roughly 765 sq ft of accommodation.
Residents benefit from extensive communal amenities: landscaped gardens, a communal lounge for social events, a House Manager during office hours, and a 24/7 emergency call system. Modern safety and convenience features include a door-camera entry system, fire detection and a dedicated maintenance and future works fund included in the service charge.
Important running costs to note: the property is leasehold (999 years from January 2023) and carries a service charge of £5,628 per year (about £108.23 per week) which covers communal utilities, building and garden maintenance, building insurance, development staff and the emergency call system. Apartment utilities, contents insurance, council tax and broadband are excluded. Council tax band is to be confirmed.
This apartment will suit buyers looking to downsize to a secure, social retirement community in Cullompton with quick access to local shops, healthcare and good transport links to Exeter. It offers low-maintenance living and social opportunities, though buyers should weigh the above-average service charge and ongoing running costs when assessing long-term affordability.
2 bedroom retirement property for sale in Willand Road,
Cullompton,
EX15 1XY
, EX15 — £221,250 • 2 bed • 1 bath • 764 ft²
1 bedroom retirement property for sale in Clarks Court, Cullompton, EX15 — £125,000 • 1 bed • 1 bath • 601 ft²
1 bedroom retirement property for sale in Trafalgar Court, Clay Lane, Uffculme, EX15 — £65,000 • 1 bed • 1 bath • 434 ft²
2 bedroom apartment for sale in Foxglove Place, Willand Road, Cullompton, EX15 — £339,500 • 2 bed • 1 bath • 667 ft²
1 bedroom retirement property for sale in Clarks Court, Cullompton, EX15 — £105,000 • 1 bed • 1 bath • 420 ft²
1 bedroom retirement property for sale in Clarks Court, High Street, Cullompton, EX15 — £125,000 • 1 bed • 1 bath • 538 ft²


























