Single-storey home with low-maintenance garden and garage, ideal for downsizers.
Two double bedrooms with good natural light
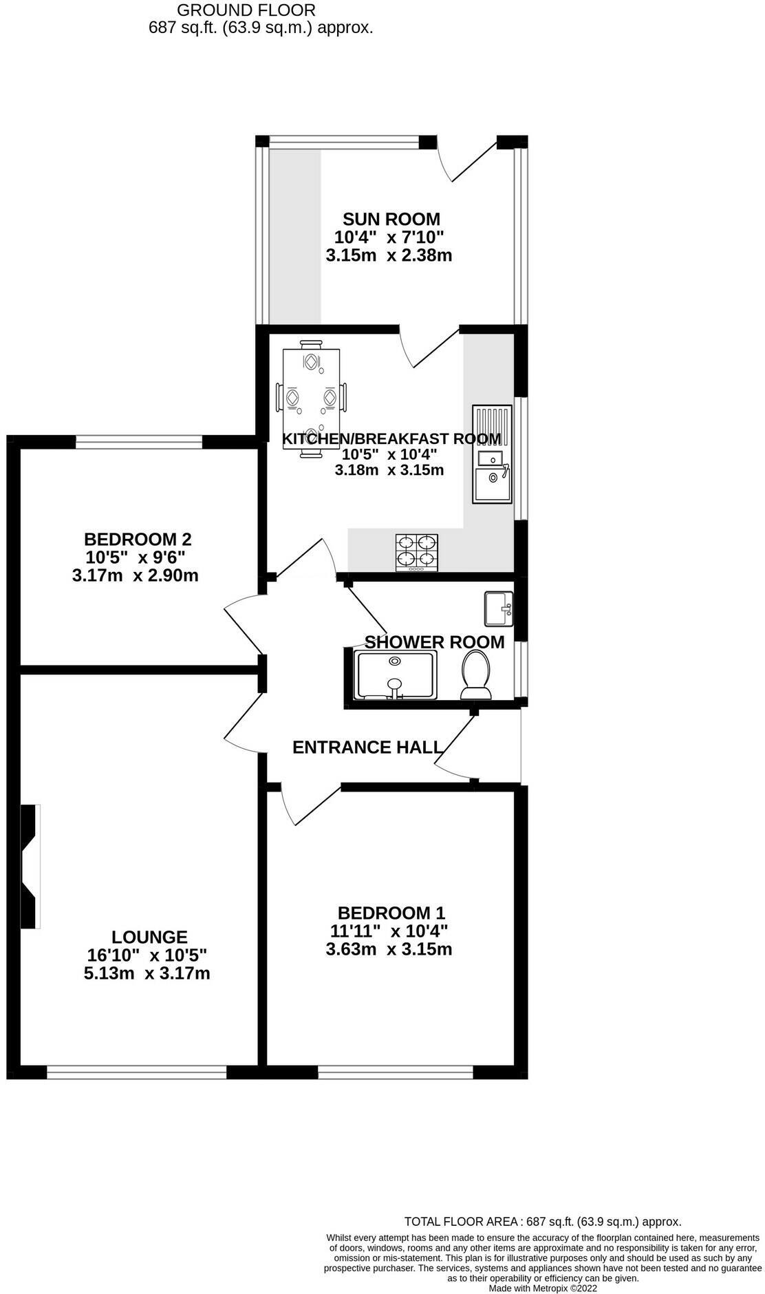
This well-kept two-bedroom semi-detached bungalow provides comfortable single-storey living close to Newton Abbot and local amenities. The layout suits buyers seeking low-maintenance accommodation: a bright lounge with feature fireplace, a modern kitchen/breakfast room and a re-fitted shower room. A conservatory/utility leads to a tidy, low-upkeep rear garden with patio and artificial lawn.
Practical extras include a driveway, single garage with power and light, and a side area currently covered to create a small home office or hobby room. The property is freehold with council tax band C and mains services (gas boiler and radiators). Double glazing is installed, and the bungalow sits on a decent plot within a quiet residential street.
Buyers should note the accommodation is compact-to-average for a bungalow and was constructed mid-20th century (1950s–1960s). The garage has been partially adapted to form a home office, which reduces secure storage and vehicle space. Windows appear to be older double glazing (pre-2002), so replacement may be considered for improved thermal performance.
Overall this home offers easy, single-level living with practical parking and low garden upkeep — a strong match for downsizers, those seeking a modest retirement property, or buyers wanting a manageable base near local schools and transport links. A viewing will confirm room sizes and layout suitability for individual needs.
2 bedroom bungalow for sale in Blindwell Avenue, Kingsteignton, Newton Abbot, Devon, TQ12 — £325,000 • 2 bed • 1 bath • 742 ft²
2 bedroom bungalow for sale in Whitears Way, Kingsteignton, Newton Abbot, TQ12 — £335,000 • 2 bed • 1 bath • 690 ft²
2 bedroom detached bungalow for sale in Meadowcroft Drive, Kingsteignton, Newton Abbot, TQ12 3PB, TQ12 — £300,000 • 2 bed • 1 bath • 646 ft²
2 bedroom bungalow for sale in Meadowcroft Drive, Kingsteignton, Newton Abbot, Devon, TQ12 — £375,000 • 2 bed • 1 bath • 971 ft²
2 bedroom semi-detached bungalow for sale in Clifford Avenue, Kingsteignton, Newton Abbot, TQ12 3NY, TQ12 — £300,000 • 2 bed • 1 bath • 600 ft²
2 bedroom detached bungalow for sale in Chudleigh Road, Kingsteignton, Newton Abbot, Devon. , TQ12 — £340,000 • 2 bed • 1 bath • 899 ft²






























































